中古マンション
リノベ済
2022/11/18 2030 Views
3面バルコニーとたっぷり収納の最上階邸宅
田園都市エリア(たまプラーザ駅)
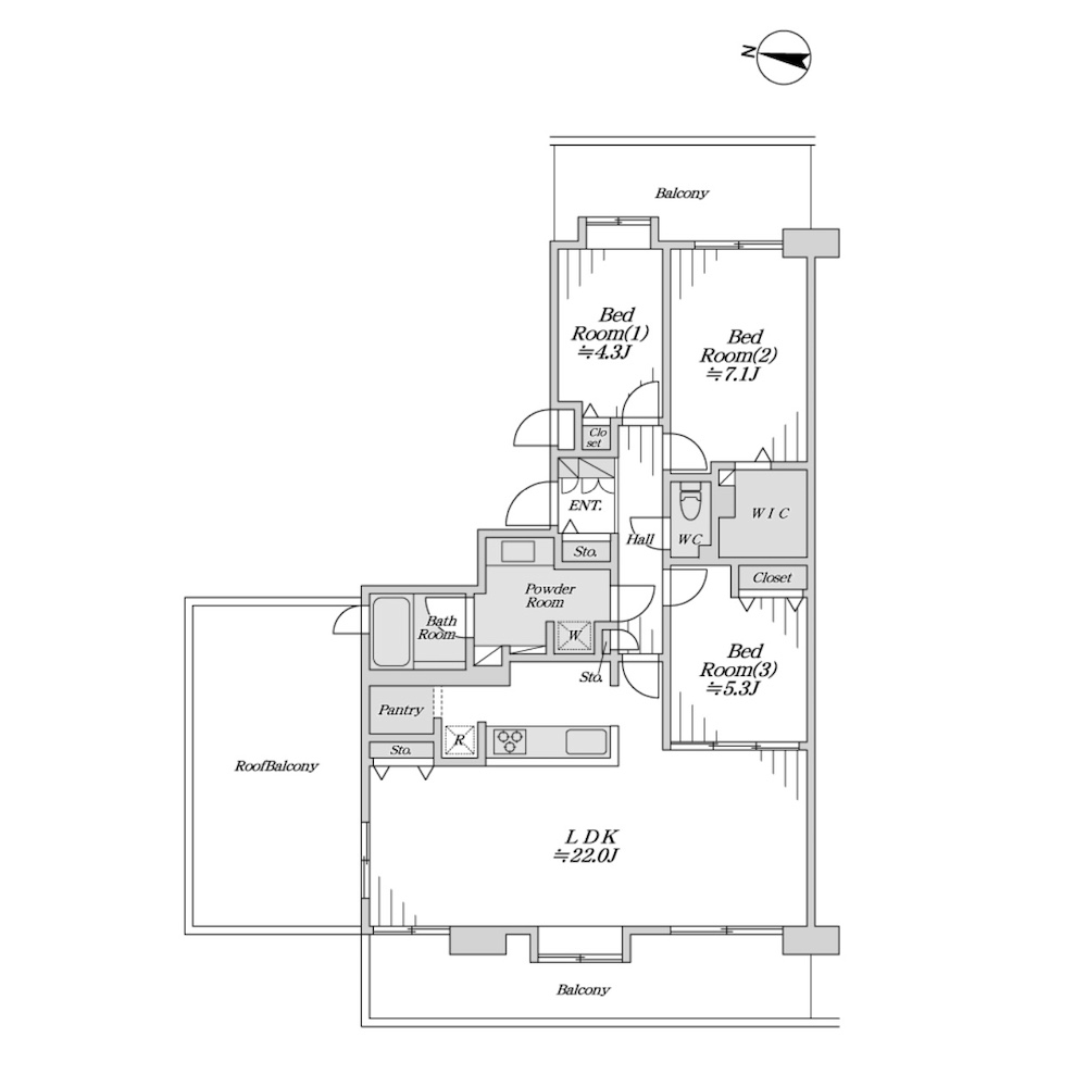
87.93㎡
#with Kids #with Pets #アウトドアリビング #ガーデニング
SOLD
物件のポイント
◎大きなルーフバルコニーと2つのバルコニーで三方を囲まれた、約88㎡の最上階角部屋です。玄関、キッチン、洗面室、寝室の広い収納スペースや水回りの窓など、快適で、美しい暮らしが実現するお部屋です。
◎憧れの「たまプラーザ」を生活圏に、「美しの森公園」の自然を日常に楽しめる立地です。「東名川崎インター」も近く、休日の遠出にも便利です。
◎1998年建築の新耐震設計で、リノベーションにアフターサービス保証付き。家族が永く、安心して暮らせる物件です。
物件概要
エリア田園都市エリア(たまプラーザ駅)
金額 SOLD
住所川崎市宮前区犬蔵2
広さ87.93㎡+ルーフバルコニー19.20㎡+2面バルコニー23.55㎡
アクセス田園都市線「たまプラーザ」駅徒歩11分
スタイルアウトドアリビング/ガーデニング/with Pets/with Kids
周辺
40年近く前に開発されてから、その人気が衰えることのない街「たまプラーザ」。
「たまプラーザテラス」や「東急百貨店」など、多くのキッズフレンドリーな施設が存在し、子ども連れでもゆっくりと時間を過ごせる環境です。
オープンテラス席を設けた飲食店が多いのも特徴で、週末には多くのペット連れがお茶の時間を楽しみます。
小学校や中学校の評判も高く、学習塾も数多く存在するため、進路に対してさまざまな選択肢を持つことができるでしょう。
街には街路樹や公園など豊かな緑が配置されていて、子どもがしっかり遊べる、規模の大きな公園があるのも魅力です。
近接の「宮前美しの森公園」には、井戸で地下から汲み上げた水を園内の池へと注ぐ清流があり、夏場はホタルが集まる場所としても知られます。
アメンボやザリガニなど多くの生き物が生息するため、子どもを自然に触れさせて、のびのびと育てることができるでしょう。
自分にも子どもにも、そしてペットにも、あらゆる生き物に暮らしやすい場所が用意された、豊かな人生を送るためのエリアといっても良いのかもしれません。
(写真上)「宮前美しの森公園」とその前面の美しい並木道
(写真下)元フロンターレの大久保選手も行きつけという焼肉店が目の前に


外観
「たまプラーザ」駅から徒歩11分。
駅前の商店街と美しく続く街路樹を抜けた先にある、静かな住宅街に立地するのが今回の物件です。
長く南北に横たわる、5階建の低層の建物が明るい陽射しに浮かび上がります。
ベージュのタイルとぽっこり飛び出した出窓のデザインが懐かしく、なんだか安心できる雰囲気です。

共用部分
巨大な円柱に支えられ、覆いかぶさるように建物が迫り出したメインエントランス。
ホテルを思わせるダイナミックな設計が、通常のマンションとは異なる特別感を演出しています。

敷地内には遊具を備えたプレイロットを併設。
身支度をせず、気軽に子どもを連れ出せるのは、子育て世帯にはやっぱり嬉しいポイントです。
東側に低層戸建が並ぶため、午前中を中心にしっかりと陽射しも入ります。

玄関
玄関の中は明るく、清潔感あふれる雰囲気です。
白い空間の中で、木目の強いフローリングと建具が映え、ナチュラルで、美しいインテリアが完成しています。
約90㎡の部屋だけあって、天井まで高さのある玄関収納に加え、大きな物入れが用意されています。
アウトドアグッズやスポーツ用品の収納に重宝するため、外遊び好きなアクティブファミリーに嬉しいスペースになりそうです。

リビングダイニング
リビングダイニングはキッチンを合わせて22畳!
ダイニングテーブルとソファを配置しても、まだまだスペースにゆとりが残る、なんとも贅沢な空間です。
二方向に設計された四ヶ所の窓の先に広いバルコニーが続き、明るく、開放感にもあふれています。

これだけのスペースがあれば、リビング脇の個室をつなげずとも、ゆったりとした時間を過ごせます。
6人掛けの大きなダイニングテーブルに、大きなL型ソファー。
ダイニングでおしゃべりをしながら、同時にリビングでゲームを楽しむなど、家族がいつもここに集まり、一緒の時間を楽しむことができるでしょう。


北側の残った部分にカウンターなどを設置して、ワークスペースに仕上げるのも一案です。
ダイニングテーブルを片付けることもなく、フリーアドレスで勉強をしたり、洗濯物を畳んだり。
勉強に行き詰まった時はルーフバルコニーに出れば、上手な気分転換もできそうです。
大きなゲージを設置して、ワンちゃん専用のスペースをつくるのはちょっと贅沢でしょうか。
美しいインテリアだけに、北欧調のシンプルなアイアン手すりなど、デザインにもこだわって選びたいですね。

キッチン
対面式のオープンキッチンは、リビングダイニングと空間が一体化し、明るく、開放感のある雰囲気です。
純白のシステムキッチンは清潔感があり、引き出し収納や人造大理石のワークトップ、浄水器内蔵の水栓、食洗機など、充実した機能が備わっています。
嬉しいのがその奥に続くパントリースペース。
ウォークインクロゼットのように、L字型に可動棚が設計され、食品はもちろん、日用品や備蓄品など、生活に必要なものはすべて仕舞える大容量収納です。
リビングダイニングから丸見えにならないレイアウトも嬉しいですね。

ルーフバルコニー
この物件の最大の魅力が、約24㎡の巨大ルーフバルコニー。
最上階に浮かぶように設計されたスペースは、周囲の建物と距離も確保していて、まるでどこかの施設にある展望台のような開放感をともなっています。
リビングと接続するため、使い勝手の良い”アウトドアリビング”として、気持ちの良い庭時間を楽しむことができるでしょう。
グリーンやアウトドア家具、ハンモックやテントなど、大きなスペースを存分に活用して、家族だけのプライベートリゾートを完成させてみるのはいかがでしょうか。
外出する必要のないほど充実したアウトドア空間で、家族の思い出となる、大切な場所が出来上がるように思います。

バルコニー
大きなリビングダイニングの西側を覆うのは、長く、奥行きのあるバルコニー。
庇をガラス仕様にすることで、南側の陽射しも取り込める、明るいスペースに仕上がっています。
通常であれば、ウッドパネルとテーブル&チェアのセットをオススメするのですが、”アウトドアリビング”はルーフバルコニーの方が良さそうです。
たくさんのプランターで、リビングダイニングを緑色に染めてしまいましょう。
ただし、冬場はこちらの方があたたかいため、チェアをセットできる場所を確保するのがオススメです。
緑に囲まれたスペースで、ペットも一緒に気持ち良く日向ぼっこしてくれると思います。

リビング脇個室
リビング脇個室は5.3畳。
間仕切りを閉じて個室にすれば、ダイニング脇と異なり、集中する書斎などにも利用できるスペースです。
もちろん子どもが大きくなった4人以上の家族であれば、寝室に使用することになると思います。

サニタリー
幅広の洗面台は、木の風合いを感じさせるナチュラルなデザイン。
浴室の手前に大型のリネン庫が設計され、家族のタオルや着替えもすべて収納できる、ゆとりのサニタリースペースになっています。

浴室には開閉可能な窓が備わります。
湿気のこもりやすいマンションでは、浴室のカビに悩まされることが多いのですが、これなら常に清潔な状態で、気持ちの良いバスタイムを過ごすことができそうです。

個室
玄関脇に配置された2つの個室。
”中入り玄関”のおかげでパブリックゾーンとは切り離された、プライベート性の高い空間です。
7.1畳の個室は十分な広さが確保され、大型ウォークインクローゼットにバルコニーも備わり、主寝室として申し分のない条件が揃っています。
窓際にテーブル&チェアを設置して、夫婦でバルコニーのグリーンを楽しむのも良いですね。
(写真上)7.1畳個室
(写真中)奥行きのある東側バルコニー
(写真下)最上階バルコニーから見える開放的な景色



【リノベーション内容】
・フローリング新規施工
・システムキッチン新規交換
・ユニットバス新規交換
・洗面化粧台新規交換
・全居室クロス張替え
・トイレ便器交換
・建具、玄関収納等新規交換ほか
※アフターサービス保証付き
【スタッフのひとこと】
こちらの物件はいかがでしたか?
大きなルーフバルコニーと2つのバルコニーで三方を囲まれた、約88㎡の最上階角部屋です。玄関、キッチン、洗面室、寝室の広い収納スペースや水回りの窓など、快適で、美しい暮らしが実現するお部屋です。
憧れの「たまプラーザ」を生活圏に、「美しの森公園」の自然を日常に楽しめる立地です。「東名川崎インター」も近く、休日の遠出にも便利です。
1998年建築の新耐震設計で、リノベーションにアフターサービス保証付き。家族が永く、安心して暮らせる物件です。
広い部屋でペットと一緒にゆったりと暮らしたいご家族、緑豊かな環境でのびのびと子育てしたいご家族にオススメです。
ぜひ一度、ご見学ください!
| 住所 | 川崎市宮前区犬蔵2 |
|---|---|
| アクセス | 田園都市線「たまプラーザ」駅徒歩11分 |
| 間取り | 3LDK |
| 広さ | 87.93㎡ |
| バルコニー | ルーフバルコニー19.20㎡、2面バルコニー23.55㎡ |
| 構造 | 鉄筋コンクリート造 |
| 階層 | 5階建5階部分 |
| 総戸数 | 68戸 |
| 築年月 | 1998年2月 |
| 改装年月 | 2022年11月 |
| 現況 | 鉄筋コンクリート造 |
|---|---|
| 引渡し可能年月 | 相談 |
| 管理会社 | 伊藤忠アーバンコミュニティー株式会社 |
| 管理形態及び管理員の勤務形態 | 全部委託 |
| 土地権利 | 所有権 |
| ペット飼育 | 可 |
| その他 | ルーフバルコニー使用料:580円(月額)、組合費:200円(月額) |
| 取引態様 | 媒介 |
| 管理費 | 15,700円(月額) |
| 修繕積立金 | 29,020円(月額) |
スタイルが近い物件SIMILAR PROPERTY
-
中古マンション リノベ済
田園都市エリア(たまプラーザ駅)
【新価格】市場を味わい公園をくつろぐ、緑景の家
66.56㎡
4480万円
#with Kids #with Pets #アウトドアリビング #ガーデニング
2026.04.12
-
中古マンション リノベ済
田園都市エリア(たまプラーザ駅)
【新価格】フルオープンテラスと暮らす家
76.20㎡
4598万円
#with Kids #with Pets #アウトドアリビング #ガーデニング
2026.04.11
-
中古マンション リノベ済
田園都市エリア(武蔵中原駅)
窓外を緑で覆われる、パークサイドの家
60.88㎡
4990万円
#with Kids #アウトドアリビング #ガーデニング
2026.04.09
-
中古マンション リノベ済
田園都市エリア(たまプラーザ駅)
【新価格】眺望と陽だまりが気持ち良い、たまプラ高台の家
68.68㎡
5198万円
#with Kids #アウトドアリビング #ガーデニング
2026.04.07
-
中古マンション リノベ済
田園都市エリア(たまプラーザ駅)
三方の光と風を味わう、たまプラーザの家
72.00㎡
5780万円
#with Kids #アウトドアリビング #ガーデニング
2026.04.05
-
中古マンション リノベ済
田園都市エリア(宮崎台駅)
最上階の開放感と、美しいインテリアで暮らす家
75.30㎡
4299万円
#with Kids #with Pets #ガーデニング
2026.04.02
-
中古マンション リノベ済
田園都市エリア(鷺沼駅)
【新価格】4つの個室に陽だまりができる、鷺沼の家
82.33㎡
4690万円
#with Kids #with Pets #ガーデニング
2026.03.31
無料相談を
おこなっております!
物件を買いたい、物件を売りたい、
不動産について相談をしたい方は、
まずは無料相談へお問い合わせください。
コンサルタントがあなたのお話をお伺いさせていただきます。
-
物件の購入を考えているお客様
-
物件の売却を考えているお客様














