中古マンション
リノベ済
2024/04/14 1371 Views
マチナカ最上階の、美コンパクトな家
田園都市エリア(青葉台駅)
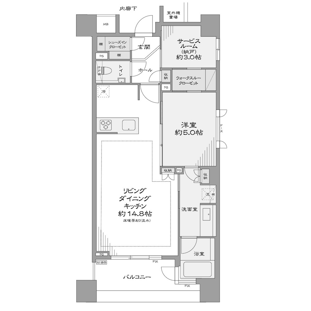
55.10㎡
#with Kids #with Pets #アウトドアリビング #ガーデニング
SOLD
物件のポイント
◎人気の「青葉台」駅から徒歩2分。周囲にあらゆる施設が揃う環境で、アオバのマチナカを満喫できる立地です。
◎グレイッシュトーンでコーディネートされた、シックで美しいインテリア。露天のようなバスルームや大容量のシューズインクロゼットなど、快適暮らしの間取りも特徴です。
◎2005年築の新耐震基準マンションで、リノベーションにアフターサービス保証付き。家族が永く、安心して暮らせる物件です。
物件概要
エリア田園都市エリア(青葉台駅)
金額 SOLD
住所横浜市青葉区青葉台1
広さ55.10㎡+ワイドバルコニー6.42㎡
アクセス田園都市線「青葉台」駅徒歩2分
スタイルアウトドアリビング/ガーデニング/with Kids/with Pets
周辺
建物のエントランスを出ると、そこは「青葉台」の交差点。
そのまま100メートルも歩けば駅に到着してしまう、素晴らしく便利な立地です。
周辺には、駅ビルの「青葉台東急スクエア」を中心に、あらゆる施設が揃います。
特に、「成城石井 」や「明治屋」、「OKストア」など、さまざまなスーパーが集うため、料理好きの家族には、週末の買い出しが楽しみな時間になりそうです。
大型ショッピング施設だけではなく、イタリアンやペットショップなど、小さいながらもセンスの良い店舗が並ぶのも「青葉台」の特徴です。
約50年前に開発されて以来人気が衰えることのない、住み心地の良い街といえるでしょう。
(写真)斜向かいに「青葉台東急スクエア」が立地

外観
マチナカということもあり、建物は10階建の細長いファサード。
縦のラインを白、横のラインを黒に設定した、モノトーンデザインが美しく、洗練された印象です。
目の前にバス停があるため、「十日市場」駅など、JR利用にも便利です。

共用部分
エントランスホールは高級感の漂う石造り。
美しい壁や床を見れば、掃除がゆき届き、しっかりと管理されていることが分かります。
オートロックやモニター付きインターフォンなど、セキュリティ体制も万全で、忙しい家族に嬉しい宅配ボックスも完備されています。

カーペット貼りの内廊下は、ハイグレードマンションでしか見られない仕様。
ホテルのような高級感ある雰囲気が、ここに住む喜びを、存分に感じさせてくれることでしょう。
外部から中の様子を見られることがないため、プライバシー性が高く、安心&安全な暮らしが送れます。

玄関
ホワイトアッシュとダークブラウンの組み合わせが洗練されたインテリア。
廊下の面積を最小限に抑えることで、コンパクトながら、居心地の良い居室空間を実現させた設計です。

右手の扉を開くと、憧れのシューズインクロゼットがあらわれます。
大容量の収納は、これから靴の種類が増えていく子育て世帯にも嬉しいスペース。
ペット用品やスポーツ用品など、外用のアイテムをまとめて仕舞っておくこともできそうです。

リビングダイニング
リビングダイニングは、キッチンを合わせて14.8畳。
木目が美しいアッシュ柄のフローリングに、ホワイトのクロスを合わせた、上質なインテリアが完成しています。
リビングスペースの奥まで入り込む、たっぷりとした日差しがなんとも気持ちが良さそうです。

リビングダイニングは大きすぎず、小さすぎず、夫婦2人、あるいは3人家族にちょうど良いサイズなのかもしれません。
キッチンカウンターに寄せて、4人掛けのダイニングセットを配置しても、8畳ほどのスペースが残るため、居心地の良いリビング空間がつくれるはずです。

家具はグレーのファブリックを取り入れて、品のある、グレイッシュインテリアはいかがでしょう。
あるいはブラックとホワイトのモノトーンを意識して、パリのアパルトマンのような雰囲気をイメージするのも素敵です。
リビングダイニング両スペースに床暖房が用意されているため、一年を通して、快適に過ごすことができるでしょう。

バルコニー
リビングと続く、約6㎡のバルコニー。
奥行きがあるため、折りたたみのチェアを置き、”アウトドアリビング”に活用するのも良いでしょう。
西向きのため、午後はしっかりとした光が入ります。
洗濯物も良く乾くはずですが、できれば多くの緑で部屋を彩るのがオススメです。

アオバの街並みを見下ろす、10階からの眺望は最高です!
最上階でしか味わうことのできないこの景色こそ、我が家を好きであり続ける、大きな要因になるのかもしれません。

キッチン
キッチンは対面式のオープンタイプ。
リビングでくつろぐ家族と会話をしながら、賑やかな調理時間を過ごすことができるでしょう。
ホワイトのシステムキッチンは美しく、家具のような佇まい。
大容量の引き出し収納に加え、背面のキャビネットスペースを利用して、使いやすい、自分だけの空間に仕上げましょう。
浄水器一体水栓やスリムレンジフードなど、最新の機能も備えています。

リビング脇個室
リビング脇個室は5畳。
窓から明るさと風を取り入れて、快適な時間を過ごせる空間です。
基本的にはここが寝室になりますが、普段は引き戸を開放して、空間を大きく見せるのが良いでしょう。
もちろん来客時に引き戸を閉めれば、あわてて片付ける必要はありません。
サニタリーに直接つながる動線も、ホテルのようで素敵です。

サニタリー
洗面台は上品なベージュトーン。
ブラックの縁取りが全体をリッチな雰囲気で包む、グレードの高い仕様です。
広々としたカウンタートップには、ソープディスペンサーやミニグリーンを置いて、お気に入りの空間を演出したいですね。

浴室は、木目調パネルにブラックの棚を組み合わせた、ゴージャスな仕様。
節水シャワーや乾きやすい床など、毎日のバスタイムが楽しみになりそうな機能が備わります。
特徴は浴槽に浸かりながら、空を眺めれられる露天風呂仕様!
光と風を取り入れられる浴室の窓はやっぱり良いですね。

サービスルーム
玄関脇には3畳のサービスルームが設計されています。
コンパクトですが、ベッドスペースも確保できるため、子ども部屋や書斎など、居室としての利用に問題もなさそうです。
家族構成が許せば、贅沢な納戸利用も◎。
玄関から近く、アウトドアグッズやスポーツグッズをストックしやすいため、アクティブファミリーにとって、なくてはならない場所になってくれると思います。

奥にはウォークスルークロゼットが。
5畳個室からの出入りも可能なため、衣類のほか、掃除道具や季節品など、家族共有の収納場所に活躍してくれると思います。
親と子で共有すれば、子どもの持ち物を確認したり、片付けの習慣を身につけさせることもできるでしょう。

【リノベーション内容】
・フローリング新規貼替
・壁、天井クロス新規貼替
・給水管、給湯管新規交換
・給湯器新規交換
・建具、玄関収納等新規交換
・LIXIL製洗面化粧台新規交換
・エアコン一基新規設置
・TOTO製洗浄便座付トイレ新規交換
・床暖房マット新規交換
・TOTO製追焚機能付ユニットバス新規交換
・LIXIL製システムキッチン新規交換ほか
【スタッフのひとこと】
こちらの物件はいかがでしたか?
人気の「青葉台」駅から徒歩2分。周囲にあらゆる施設が揃う環境で、アオバのマチナカを満喫できる立地です。
グレイッシュトーンでコーディネートされた、シックで美しいインテリア。露天のようなバスルームや大容量のシューズインクロゼットなど、快適暮らしの間取りも特徴です。
2005年築の新耐震基準マンションで、リノベーションにアフターサービス保証付き。家族が永く、安心して暮らせる物件です。
アオバのマチナカで、便利な暮らしを満喫したいご家族に。
ぜひ一度、ご見学ください!
| 住所 | 横浜市青葉区青葉台1 |
|---|---|
| アクセス | 田園都市線「青葉台」駅徒歩2分 |
| 間取り | 1SLDK |
| 広さ | 55.10㎡ |
| バルコニー | 6.42㎡ |
| 構造 | 鉄筋コンクリート造 |
| 階層 | 10階建10階部分 |
| 総戸数 | 44戸 |
| 築年月 | 2005年7月 |
| 改装年月 | 2024年2月 |
| 現況 | 空室 |
|---|---|
| 引渡し可能年月 | 相談 |
| 管理会社 | 株式会社東急コミュニティー |
| 管理形態及び管理員の勤務形態 | 全部委託(巡回) |
| 土地権利 | 所有権 |
| ペット飼育 | 不可 |
| その他 | インターネット設備保守料:1,540円(月額)、警備料:660円(月額)、自治会費:150円(月額)、 |
| 取引態様 | 媒介 |
| 管理費 | 11,200円(月額) |
| 修繕積立金 | 19,500円(月額) |
スタイルが近い物件SIMILAR PROPERTY
-
中古マンション リノベ済
田園都市エリア(宮前平駅)
【新価格】パノラマ窓とルーバルの快適な家
70.67㎡
3899万円
#with Kids #with Pets #アウトドアリビング #ガーデニング
2026.05.18
-
中古マンション リノベ済
田園都市エリア(梶が谷駅)
森のテラスと暮らす家
77.85㎡
5298万円
#with Kids #with Pets #アウトドアリビング #ガーデニング
2026.05.16
-
中古マンション リノベ済
田園都市エリア(梶が谷駅)
高台から街を一望する、見晴らしの家
73.70㎡
3799万円
#with Kids #with Pets #アウトドアリビング #ガーデニング
2026.05.12
-
中古マンション リノベ済
田園都市エリア(たまプラーザ駅)
公園の緑景と暮らす、美しが丘の100㎡邸宅
97.82㎡
6490万円
#with Kids #with Pets #アウトドアリビング #ガーデニング
2026.05.09
-
中古マンション リノベ済
田園都市エリア(たまプラーザ駅)
窓いっぱいの緑に包まれる、明るく、さわやかな家
84.27㎡
3880万円
#with Kids #アウトドアリビング #ガーデニング
2026.05.04
-
中古マンション リノベ済
田園都市エリア(青葉台駅)
パノラマ緑景に癒される、青葉台8分の家
65.40㎡
6799万円
#with Kids #with Pets #アウトドアリビング #ガーデニング
2026.05.01
-
中古マンション リノベ済
田園都市エリア(鷺沼駅)
【新価格】4つの個室に陽だまりができる、鷺沼の家
82.33㎡
4490万円
#with Kids #with Pets #ガーデニング
2026.04.30
無料相談を
おこなっております!
物件を買いたい、物件を売りたい、
不動産について相談をしたい方は、
まずは無料相談へお問い合わせください。
コンサルタントがあなたのお話をお伺いさせていただきます。
-
物件の購入を考えているお客様
-
物件の売却を考えているお客様














