中古マンション
リノベ済
2026/03/07 2072 Views
「美しが丘」を味わう、ゆったりバルコニーの家
田園都市エリア(あざみ野駅)
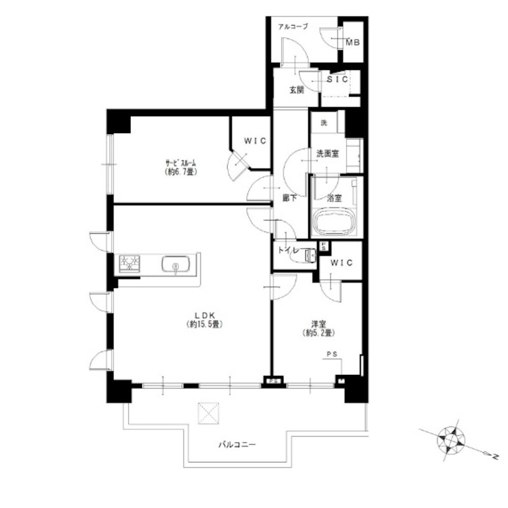
64.86㎡
#with Kids #with Pets #アウトドアリビング #ガーデニング
SOLD
物件のポイント
◎「たまプラーザ」と「あざみ野」の両駅を徒歩圏内で利用できる、「美しが丘」アドレスに立地。近隣に評判の高い料理屋も揃い、ペットとともに、スローなライフスタイルを楽しめる環境です。
◎”アウトドアリビング”を楽しめる、ゆったりとしたバルコニーが特徴の部屋。ウォークイン&シューズインクロゼットの、豊富な収納スペースも魅力です。
◎2003年建築の新耐震設計で、リノベーションにアフターサービス保証も付き、家族が永く、安心して暮らせる物件です。
物件概要
エリア田園都市エリア(あざみ野駅)
金額 SOLD
住所横浜市青葉区美しが丘5
広さ64.86㎡+バルコニー11.67㎡
アクセス田園都市線「あざみ野」駅徒歩10分
スタイルアウトドアリビング/ガーデニング/with Pets/with Kids
周辺
「あざみ野」駅から徒歩10分、「たまプラーザ」駅から徒歩14分。
両駅のちょうど間に位置する「美しが丘」は、田園都市の中でも特に人気の高いエリアのひとつです。
小さな飲食店やカフェの集まる「あざみ野」駅と大型商業施設が揃う「たまプラーザ」。
評判の料理店も数多く存在するため、散歩がてらお気に入りの一軒を見つけるのも、この街ならではの楽しみです。
公園も多く、ペットと一緒にゆったりとした時間を過ごせそうな、穏やかな住環境が広がります。
(写真)センス良く、便利な店舗が集合する「たまプラーザ」駅前

外観
「美しが丘」の住宅街に佇む、総戸数22戸、5階建ての低層レジデンス。
品の良いブラウンのタイルに、淡いブルーのガラス手すりを合わせた端正なデザインが、「美しが丘」の街並みにしっくりと馴染んでいます。

エントランスホール
装飾のほどこされた、ゴージャスなコンソールテーブルが主役。
ホール全体を石タイルで構成することで、クラシカルな、格調ある雰囲気が演出されています。

玄関
ブラウンのグラデーションでまとめられた、やわらかいインテリア。
建具とフローリングの木目が、ナチュラルで、心地よい雰囲気をつくり上げています。
玄関幅にゆとりがあるため、ちょっとしたグリーンを添えて、より素敵な我が家を演出したいですね。

玄関脇には、シューズインクロゼットを用意。
可動棚を調整することで、靴だけではなく、アウトドアグッズやペット用品も収まります。
ベビーカーを置くスペースも確保されているため、いつも玄関まわりをスッキリ保つことができるでしょう。

リビングダイニング
リビングダイニングは、キッチンと合わせて15.5畳。
角部屋のため、東と南、二方向の窓から光と風を取り入れます。
開放感ある空間の中で、のびのびと、心地良い時間を過ごすことができそうです。

ホワイトをベースとした空間に、モカブラウンの建具が浮かびます。
美しい木目には、やっぱりナチュラルテイストが似合いそう。
無垢材のテーブルやファブリックのソファなど、素材感のある家具で“北欧ナチュラル”に仕上げるのがオススメです。

明るい窓際や広いキッチンカウンターには、さまざまなグリーンを配置しましょう。
窓際に大きめのグリーンを置くことで、外の視線をやわらかく遮り、よりプライベート感を高めるのも一案です。

バルコニー
この物件の特徴が、約12㎡のゆったりとしたバルコニー。
前面道路で視界が広く抜けるため、大きな空に包まれるような感覚が味わえます。
お気に入りのテーブル&チェアを選んで、足元にアウトドアラグを敷けば、とっておきの“アウトドアリビング”に早変わり。
テラスチェアでコーヒーを飲んだり、ペットと日向ぼっこをしたり、大好きな植物に囲まれる、憧れの時間を過ごしましょう。

キッチン
キッチンは、リビングダイニング全体を見渡せるオープンタイプ。
料理中も家族とコミュニケーションを楽しめる、人気の仕様です。
収納は大容量のスライド式。
背面の壁にシェルフを造り付けて、見せる収納で、さらにセンスの良い空間に仕上げるのもオススメです。
食洗機を筆頭に、浄水器と一体となった水栓や人工大理石のワークトップなど、快適に使用できる最新の装備が導入されています。

リビング脇個室
リビング脇個室は5.2畳。
夫婦の寝室や家族共有のスペースなど、ライフスタイルに合わせた使い方を考えましょう。
エアコンの先行配管も完了しているので、寝室利用でも快適に過ごすことが可能です。

サニタリー
カウンター上部の継ぎ目がなく、汚れがたまりにくい機能的な洗面台。
大容量のキャビネットに加え、三面鏡裏にも収納が付いているため、家族それぞれの小物を整理して使うことができるはず。
ちょっと嬉しいのが、洗濯機スペースの脇に設計されたカウンター。
グリーンやサーキュレーターを置くなど、上手に活用したいスペースです。

光沢ある木目が高級感を演出するバスルーム。
お湯が冷めにくい浴槽や水量を削減できる節水シャワーなど、最新の機能で心地よいバスタイムを過ごすことができるでしょう。

個室
玄関脇に設計されているのは6.7畳の個室。
大きなクローゼットが設計されているため、収納家具を置く必要もなく、空間を広々と使うことができそうです。
シンプルなインテリアなので、自分好みのインテリアもつくりやすいと思います!

【スタッフのひとこと】
こちらの物件はいかがでしたか?
「たまプラーザ」と「あざみ野」の両駅を徒歩圏内で利用できる、「美しが丘」アドレス。近隣に評判の高い料理屋も揃い、ペットとともに、スローなライフスタイルを楽しめる環境です。
”アウトドアリビング”を楽しめる、ゆったりとしたバルコニーがひとつの特徴。ウォークイン&シューズインクロゼットの、豊富な収納スペースも魅力です。
1999年建築のトップブランドによる新耐震設計。アフターサービス保証も付き、家族が永く、安心して暮らせる物件です。
ペットともにゆったりと暮らしたい、たまプラーザ好きのご夫婦に。
ぜひ、一度ご見学ください!
| 住所 | 横浜市青葉区美しが丘5 |
|---|---|
| アクセス | 田園都市線「あざみ野」駅徒歩10分 |
| 間取り | 1SLDK |
| 広さ | 64.86㎡ |
| バルコニー | 11.67㎡ |
| 構造 | 鉄筋コンクリート造 |
| 階層 | 5階建3階部分 |
| 総戸数 | 22戸 |
| 築年月 | 2003年11月 |
| 改装年月 | 2026年2月 |
| 現況 | 空室 |
|---|---|
| 引渡し可能年月 | 相談 |
| 管理会社 | 株式会社エム・シーサービス |
| 管理形態及び管理員の勤務形態 | 全部委託(通勤) |
| 土地権利 | 所有権 |
| ペット飼育 | 可 |
| その他 | - |
| 取引態様 | 媒介 |
| 管理費 | 17,470円(月額) |
| 修繕積立金 | 12,650円(月額) |
スタイルが近い物件SIMILAR PROPERTY
-
中古マンション リノベ済
田園都市エリア(青葉台駅)
パノラマ緑景に癒される、青葉台8分の家
65.40㎡
6799万円
#with Kids #with Pets #アウトドアリビング #ガーデニング
2026.05.01
-
中古マンション リノベ済
田園都市エリア(鷺沼駅)
【新価格】4つの個室に陽だまりができる、鷺沼の家
82.33㎡
4490万円
#with Kids #with Pets #ガーデニング
2026.04.30
-
中古マンション リノベ済
田園都市エリア(武蔵中原駅)
三方窓と広い庭がある、戸建てのような家
76.41㎡
6090万円
#with Kids #with Pets #アウトドアリビング #ガーデニング
2026.04.28
-
中古マンション リノベ済
田園都市エリア(たまプラーザ駅)
【新価格】三方の光と風を味わう、たまプラーザの家
72.00㎡
5580万円
#with Kids #アウトドアリビング #ガーデニング
2026.04.27
-
中古マンション リノベ済
田園都市エリア(江田駅)
【新価格】3方窓と3バルコニーの4LDK住宅
84.90㎡
5980万円
#with Kids #with Pets #アウトドアリビング #ガーデニング
2026.04.24
-
中古マンション リノベ済
田園都市エリア(鷺沼駅)
庭景色が目映い、鷺沼6分の家
72.69㎡
5990万円
#with Kids #with Pets #アウトドアリビング #ガーデニング
2026.04.22
-
中古マンション リノベ済
田園都市エリア(溝の口駅)
【新価格】ノクチを眼下に収める、男前インテリアの家
62.40㎡
6830万円
#with Kids #with Pets #アウトドアリビング #ガーデニング
2026.04.19
無料相談を
おこなっております!
物件を買いたい、物件を売りたい、
不動産について相談をしたい方は、
まずは無料相談へお問い合わせください。
コンサルタントがあなたのお話をお伺いさせていただきます。
-
物件の購入を考えているお客様
-
物件の売却を考えているお客様

















