中古マンション
リノベ済
2026/03/05 700 Views
陽の光とモカブラウンの心地よい家
田園都市エリア(市が尾駅)
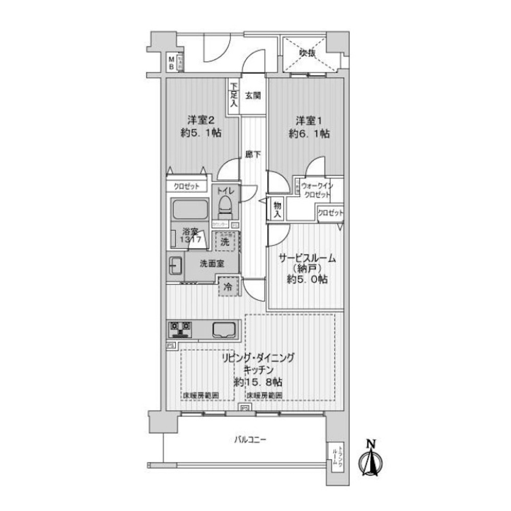
73.59㎡
#with Kids #with Pets #アウトドアリビング #ガーデニング
SOLD
物件のポイント
◎田園都市線「市が尾」駅徒歩5分。街路樹の緑があふれる美しい街並みの中、田園都市らしい、気持ちの良い暮らしが実現できる環境です。
◎南面から陽の光を取り入れる、モカブラウンの美しいインテリア。水回りがつながるスマートな動線やウォークインクロゼットなど、暮らしやすい設計が詰まっています。
◎2000年建築の新耐震ブランドマンションで、リノベーションにアフターサービス保証が付き、家族が永く、安心して暮らせる物件です。
物件概要
エリア田園都市エリア(市が尾駅)
金額 SOLD
住所横浜市青葉区荏田西1
広さ73.59㎡+バルコニー9.77㎡
アクセス田園都市線「市が尾」駅徒歩5分
スタイルアウトドアリビング/ガーデニング/with Pets/with Kids
周辺
田園都市線「市が尾」駅から徒歩5分。
街路樹が並び、公園が点在する、緑豊かなエリアに立地する物件です。
ケヤキに囲まれた「荏田富士塚公園」は、物件から徒歩5分ほどの距離。
滑り台や砂場のほか、遊歩道も整備され、子どもから大人まで楽しめる、地域の憩いの場所として利用されているようです。
学区の「荏田西小学校」や「市ケ尾中学校」も徒歩10分の範囲にあり、子育てのしやすい環境であることがわかります。
「市が尾」駅は急行が停まる駅ではありませんが、商業施設「etomo」が併設しており、買い物に困ることもありません。
「青葉区役所」や「青葉警察署」、「緑税務署」など、公共施設も集まっているため、生活利便性の高いエリアといえそうです。
(写真)「荏田富士塚公園」前の街路樹通り

外観
「市が尾」のヒルトップに佇む、6階建て79戸のレジデンス。
垂直・水平ラインを強調した端正なフォルムと、落ち着いたベージュカラーの外観が、閑静な住宅街の景観にしっくりと馴染みます。
建物を囲む植栽も丁寧に手入れされおり、きちんと管理されている様子もうかがえます。

エントランスホール
ダークグレーの石タイルに、重厚感ある木製扉が構えるメインエントランス。
奥行きある、堂々としたアプローチが、上質な邸宅感を演出しています。
ヒルトップに並ぶ三つのマンションを、インターロッキング貼りの歩道がつなぐ美しい街並みも、この物件ならではの魅力です。

玄関
ドアを開けると、木目あふれる、やわらかい空間がお出迎え。
モカブラウンの色合いは上質感があり、折り上げた天井とともに、大人の落ち着きを感じさせるデザインです。

リビングダイニング
LDKは15.8畳。
壁面の大部分を窓ガラスが占め、その先に奥行きあるバルコニーが続くため、明るく、開放的な空間に感じます。
リビングダイニング全体が南に面し、床暖房が用意されているため、家族がどの場所にいても、気持ちの良い時間を過ごすことができるでしょう。

シンプルで上質な空間だけに、好みのインテリアもつくりやすそう。
たとえばホワイト×ブラックのモノトーンを意識して、パリのアパルトマンのような雰囲気に。
リネンのカーテンやラタンのチェアなど、素材感のある家具を合わせれば、大人ナチュラルな雰囲気を楽しむこともできるでしょう。

窓際にグリーンを設置することで、より居心地の良い場所をつくることができそうです。
「シマトネリコ」や「パキラ」など、葉が小さい植物で、室内に木漏れ日を演出するのも素敵です。

バルコニー
バルコニーはテーブルとチェアが置ける、奥行きあるスペース。
手すり壁をグリーンで演出すれば、ソトだけではなく、ウチで過ごす時間も一段と快適になるでしょう。
せっかくならウッドパネルを敷き詰めて、より美しい空間を目指しましょう。
フローリングに近い色合いを選択することで、ソトとウチのトーンが統一されて、よりすっきりとしたインテリアになると思います。
なんと、晴れた日には建物の間から富士山が拝めます!

キッチン
キッチンはリビングダイニングと空間が一体となるオープンタイプ。
開放感があり、シンク前に立つと、窓の外に広がる空が視界に入り込んできます。
浄水器内蔵の水栓や食洗機などの最新機能が、日々の調理を快適にサポートしてくれると思います。

サニタリー
ホワイトを基調とした、清潔感あふれるサニタリー。
洗面台は幅広カウンターを備え、シンプルながらも使いやすいスマートなデザインが魅力です。
キッチンから洗面室、浴室がつながっている、スマートな動線もポイントです。
洗面室から廊下への出入りも可能で、キッチンに立ちながら洗濯機を気にかけるなど、効率良く家事をこなすことができそうです。

バスルームは1317サイズ。
石目調のパネルに癒されながら、リラックスしたバスタイムが過ごせます。
保温性の高い浴槽や節水シャワー、浴室乾燥機も装備した、ハイスペックな仕様です。

個室
個室は6.1畳と5.1畳のふたつ。
窓の外を通行人が通ることがなく、視線を気にせず、プライバシー性の高い時間を過ごせます。
6.1畳個室には大きなウォークインクロゼットが用意されているため、収納家具を設置する必要がありません。
ベッドを並べてもゆとりのスペースが残るため、テーブル&チェアにグリーンを添えて、ちょっとしたコーナーをつくるのも良いですね。
(写真上)6.1畳個室
(写真下)大きなウォークインクロゼット


【リノベーション内容】
・システムキッチン交換
・ユニットバス交換
・洗面台交換
・トイレ交換
・クロス張替
・フローリング張替
・建具新規設置
※アフターサービス保証付
【スタッフのひとこと】
こちらの物件はいかがでしたか?
田園都市線「市が尾」駅徒歩5分。街路樹の緑があふれる美しい街並みの中、田園都市らしい、気持ちの良い暮らしが実現できる環境です。
南面から陽の光を取り入れる、モカブラウンの美しいインテリア。水回りが連結するスマートな動線やウォークインクロゼットなど、暮らしやすい設計が盛り込まれています。
2000年建築の新耐震マンションで、リノベーションにアフターサービス保証が付き、家族が永く、安心して暮らせる物件です。
駅近で、美しい暮らしを実現したいご家族に。
ぜひ一度、ご見学ください!
| 住所 | 横浜市青葉区荏田西1 |
|---|---|
| アクセス | 田園都市線「市が尾」駅徒歩5分 |
| 間取り | 2SLDK |
| 広さ | 73.59㎡ |
| バルコニー | バルコニー9.77㎡ |
| 構造 | 鉄筋コンクリート造 |
| 階層 | 6階建4階部分 |
| 総戸数 | 79戸 |
| 築年月 | 2000年1月 |
| 改装年月 | 2026年1月 |
| 現況 | 空室 |
|---|---|
| 引渡し可能年月 | 相談 |
| 管理会社 | 野村不動産パートナーズ株式会社 |
| 管理形態及び管理員の勤務形態 | 全部委託(日勤) |
| 土地権利 | 所有権 |
| ペット飼育 | 可 |
| その他 | 200円(月額) |
| 取引態様 | 媒介 |
| 管理費 | 12,500円(月額) |
| 修繕積立金 | 24,580円(月額) |
スタイルが近い物件SIMILAR PROPERTY
-
中古マンション リノベ済
田園都市エリア(鷺沼駅)
【新価格】4つの個室に陽だまりができる、鷺沼の家
82.33㎡
4490万円
#with Kids #with Pets #ガーデニング
2026.04.30
-
中古マンション リノベ済
田園都市エリア(武蔵中原駅)
三方窓と広い庭がある、戸建てのような家
76.41㎡
6090万円
#with Kids #with Pets #アウトドアリビング #ガーデニング
2026.04.28
-
中古マンション リノベ済
田園都市エリア(たまプラーザ駅)
【新価格】三方の光と風を味わう、たまプラーザの家
72.00㎡
5580万円
#with Kids #アウトドアリビング #ガーデニング
2026.04.27
-
中古マンション リノベ済
田園都市エリア(江田駅)
【新価格】3方窓と3バルコニーの4LDK住宅
84.90㎡
5980万円
#with Kids #with Pets #アウトドアリビング #ガーデニング
2026.04.24
-
中古マンション リノベ済
田園都市エリア(鷺沼駅)
庭景色が目映い、鷺沼6分の家
72.69㎡
5990万円
#with Kids #with Pets #アウトドアリビング #ガーデニング
2026.04.22
-
中古マンション リノベ済
田園都市エリア(溝の口駅)
【新価格】ノクチを眼下に収める、男前インテリアの家
62.40㎡
6830万円
#with Kids #with Pets #アウトドアリビング #ガーデニング
2026.04.19
-
中古マンション リノベ済
田園都市エリア(宮前平駅)
白く、美しい、宮前平の角部屋
68.79㎡
5890万円
#with Kids #with Pets #アウトドアリビング #ガーデニング
2026.04.17
無料相談を
おこなっております!
物件を買いたい、物件を売りたい、
不動産について相談をしたい方は、
まずは無料相談へお問い合わせください。
コンサルタントがあなたのお話をお伺いさせていただきます。
-
物件の購入を考えているお客様
-
物件の売却を考えているお客様
















