中古マンション
リノベ済
2026/01/13 826 Views
南町田をゆったり暮らす、4LDKの南東角部屋
田園都市エリア(南町田グランベリーパーク駅)
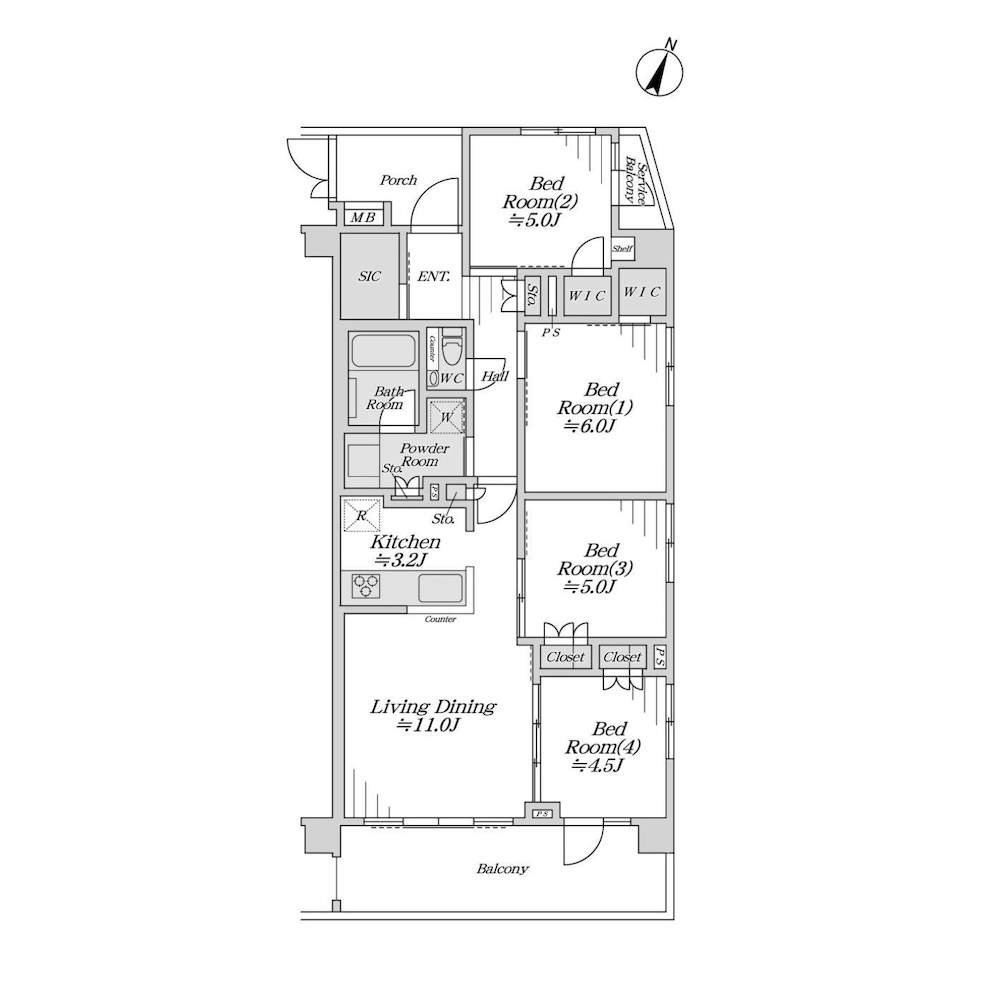
78.47㎡
#with Kids #with Pets #アウトドアリビング #ガーデニング
SOLD
物件のポイント
◎アウトレットモールを中心に、街全体が発展する南町田エリア。公園や散歩道など、落ち着いた住環境が保たれ、子育て世帯に暮らしやすいロケーションです。
◎二方向からの採光と通風に恵まれる南東角部屋。4LDKのゆとりある間取りは、家族それぞれの居場所を確保しながら、のびのびとした暮らしを実現します。
◎2016年建築&リフォーム済み!家族が永く、安心して暮らせる物件です。
物件概要
エリア田園都市エリア(南町田グランベリーパーク駅)
金額 SOLD
住所町田市南町田4
広さ78.47㎡+ワイドバルコニー11.52㎡
アクセス田園都市線「南町田グランベリーパーク」駅徒歩14分
スタイルアウトドアリビング/ガーデニング/with Pets/with Kids
周辺
田園都市沿線の中でも、今をトキメク「南町田」駅。
駅直結のアウトレットモールには、常に多くの人が訪れ、街全体に活気が広がっています。
物件脇には境川がゆったり流れ、「境川ゆっくりロード」と呼ばれる散歩道が続きます。
日常のショッピングをはじめ、週末の食事やペットの散歩まで、充実した暮らしを楽しむことができるでしょう。

外観
2016年建築のレジデンスらしく、美しく、清潔感のある佇まい。
タイル貼りの外壁にガラス手すりを組み合わせた外観は、モダンな印象ながら、落ち着いた色合いが街並みに馴染みます。
総戸数は55戸。
過度な規模感がなく、コミュニティの成り立ちやすい、ちょうどよいスケールといえそうです。

ドア周りを大きなキャノピーが覆う、堂々としたエントランスデザイン。
スロープの先に障害者用の駐車スペースを確保するなど、細やかな配慮が感じられる設計です。
植栽もしっかり刈り込まれ、良好な管理体制もうかがえます。

玄関
玄関には”クランク動線”を採用。
外から室内が見えにくく、プライバシー性が高いため、安心して暮らすことができそうです。
ダークブラウンとホワイトのツートンカラーは、シンプルで重厚感があり、住まいへの期待値を高めます。

玄関収納は憧れのシューズインクロゼットです。
廊下収納を併用することで、ペットやアウトドアグッズ、備蓄品などもストックすることができるでしょう。

リビングダイニング
LDKは14.2畳。
南面を巨大なサッシが占め、その先に広いバルコニーが続き、明るく、開放感にあふれます。

上質で、シンプルなフローリングは、どんなテイストもしっくりと馴染みそう。
ブラウンベースのシックな印象に合わせて、“北欧ヴィンテージ”を意識してみるのはいかがでしょうか。
革張りのソファや無垢材のテーブル&チェアなど、お気に入りのショップで長く使える家具をひとつひとつ吟味してみるのも良いですね。

日当たりの良いバルコニーや窓際には、たくさんのグリーンを配置しましょう。
「ドウダンツツジ」など、葉が小さい植物を選べば、室内への木漏れ日なども演出できそうです。
リビングダイニングに床暖房が備わるため、ペットもぬくぬく過ごしてくれると思います!

バルコニー
南側全体をカバーする、約12㎡の奥行きあるバルコニー。
リビングと似た色合いのウッドパネルをセットして、室内空間に広がりを持たせるのがオススメです。
ガラスパネルに合わせ、イームズの「ワイヤーチェア」など、デザインにこだわったアウトドアチェアを設置したり、「アレカヤシ」や「オーガスタ」など、リゾート感のある植物を並べれば、素敵な”アウトドアリビング”が完成します。
大きな庇が覆うため、多少の雨が気にならないのも嬉しいですね。

キッチン
キッチンは対面式のオープンタイプ。
リビングダイニングと空間が一体となる、開放感ある設計です。
掃除が楽な人大カウンターやスリムなフラットレンジフードのほか、食洗機や浄水器一体水栓など、高い機能が詰まった最新の設備であることも特徴です。

リビング脇個室
リビング脇個室は4.5畳とコンパクト。
ちょっと贅沢ですが、小さいうちは、子どもの“秘密基地”にしてしまうのはいかがでしょうか。
晴れた日をバルコニーで、雨の日を秘密基地で、毎日を自由に、のびのびと過ごすことができれば、我が家をどこよりも好きな場所に感じてくれそうです。

キッチン脇個室
キッチン脇には5畳の個室を配置。
間仕切りを開放して、ダイニングスペースに利用してしまうのもひとつのアイデアです。
ダイニングとリビングが斜めの関係になれば、空間がつながりながら、それぞれを独立した場所で使えます。
ダイニングテーブルで子どもが勉強する一方で、大人はリビングでのんびりと読書をしたり。
もちろんリビングスペースが広くなり、ゆったりと快適な場所になるのもポイントです。

サニタリー
洗面台は、三面鏡裏に収納スペースを設けた幅広タイプ。
おしゃれなソープディスペンサーやミニグリーンで、広いカウンターをセンス良くまとめたいですね。
脇にリネン庫が用意されているため、タオルや衣類も整理して収納することが可能です。

浴室は1418のゆったりサイズ。
木目調パネルがやわらかく、重厚感のある雰囲気です。
水はけのよい床や節水できるシャワーヘッドなど最新機能も備わり、家族の快適なバスタイムを約束してくれるでしょう。

個室
北側の個室は6畳と5畳のふたつ。
いずれもリビングダイニングとは距離があり、外を人が通ることもなく、自分だけの時間をゆったりと過ごすことができそうです。
外からやわらかい光が入るため、窓際にグリーンを飾って、快適な場所を演出してみませんか?
(写真上)6畳個室
(写真下)5畳個室


【リノベーション内容】
・給湯器新規交換
・ガスコンロ新規交換
・浴室鏡新規交換
・トイレ新規交換(洗浄機能付)
・全室クロス新規貼替
・洗面・トイレ塩ビタイル新規施工
・照明器具設置
・ハウスクリーニングほか
【スタッフのひとこと】
こちらの物件はいかがでしたか?
アウトレットモールを中心に、街全体が発展する南町田エリア。公園や散歩道など、落ち着いた住環境が保たれており、子育て世帯に暮らしやすいロケーションです。
二方向からの採光と通風に恵まれる南東角部屋。4LDKのゆとりある間取りは、家族それぞれの居場所を確保しながら、のびのびとした暮らしを実現します。
2016年建築&リフォーム済み!家族が永く、安心して暮らせる物件です。
活気ある場所で、ペットとともにのびのび暮らしたいご家族に。
ぜひ一度、ご見学ください!
| 住所 | 町田市南町田4 |
|---|---|
| アクセス | 田園都市線「南町田グランベリーパーク」駅徒歩14分 |
| 間取り | 4LDK |
| 広さ | 78.47㎡ |
| バルコニー | 11.52㎡ |
| 構造 | 鉄筋コンクリート造 |
| 階層 | 5階建4階部分 |
| 総戸数 | 55戸 |
| 築年月 | 2016年8月 |
| 改装年月 | 2025年10月 |
| 現況 | 空室 |
|---|---|
| 引渡し可能年月 | 相談 |
| 管理会社 | 株式会社新日本コミュニティ |
| 管理形態及び管理員の勤務形態 | 全部委託(日勤) |
| 土地権利 | 所有権 |
| ペット飼育 | 可 |
| その他 | - |
| 取引態様 | 媒介 |
| 管理費 | 14,900円(月額) |
| 修繕積立金 | 11,400円(月額) |
スタイルが近い物件SIMILAR PROPERTY
-
中古マンション リノベ済
田園都市エリア(宮前平駅)
白く、美しい、宮前平の角部屋
68.79㎡
5890万円
#with Kids #with Pets #アウトドアリビング #ガーデニング
2026.04.17
-
中古マンション リノベ済
田園都市エリア(宮前平駅)
【新価格】駅5分の地階にある、90平米超の秘密基地
94.77㎡
6980万円
#with Kids #with Pets #アウトドアリビング #ガーデニング
2026.04.16
-
中古マンション
田園都市エリア(宮崎台駅)
ウォルナットが美しい、築浅&駅6分のレジデンス
70.40㎡
7199万円
#with Kids #with Pets #アウトドアリビング #ガーデニング
2026.04.14
-
中古マンション リノベ済
田園都市エリア(市が尾駅)
【新価格】光あふれる、88平米のゆとりある家
88.05㎡
4499万円
#with Kids #with Pets #アウトドアリビング #ガーデニング
2026.04.13
-
中古マンション リノベ済
田園都市エリア(たまプラーザ駅)
【新価格】市場を味わい公園をくつろぐ、緑景の家
66.56㎡
4480万円
#with Kids #with Pets #アウトドアリビング #ガーデニング
2026.04.12
-
中古マンション リノベ済
田園都市エリア(たまプラーザ駅)
【新価格】フルオープンテラスと暮らす家
76.20㎡
4598万円
#with Kids #with Pets #アウトドアリビング #ガーデニング
2026.04.11
-
中古マンション リノベ済
田園都市エリア(武蔵中原駅)
窓外を緑で覆われる、パークサイドの家
60.88㎡
4990万円
#with Kids #アウトドアリビング #ガーデニング
2026.04.09
無料相談を
おこなっております!
物件を買いたい、物件を売りたい、
不動産について相談をしたい方は、
まずは無料相談へお問い合わせください。
コンサルタントがあなたのお話をお伺いさせていただきます。
-
物件の購入を考えているお客様
-
物件の売却を考えているお客様















