中古マンション
リノベ済
2026/01/29 1169 Views
多摩川の自然と暮らす、広い庭付きの家
田園都市エリア(高津駅)
73.74㎡
#with Kids #with Pets #アウトドアリビング #ガーデニング
SOLD
物件のポイント
◎田園都市線「高津」駅徒歩12分に立地。自然豊かな河川敷にほど近く、ゆるやかな水の流れとともにのんびりと暮らせる環境です。
◎74㎡の3LDKに、31㎡の庭スペースを加えた生活空間は、合計なんと100㎡超!南から光の入る庭スペースでは、ペットとともに、“アウトドアリビング”や“ガーデニング”など、“庭のある暮らし”を満喫することが可能です。
◎2002年建築の新耐震設計で、家族が永く、安心して暮らせる物件です。
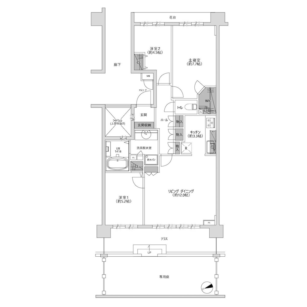
物件概要
エリア田園都市エリア(高津駅)
金額 SOLD
住所川崎市高津区溝口6
広さ73.74㎡+テラス12.78㎡+専用庭18.46㎡
アクセス田園都市線「高津」駅徒歩12分
スタイルアウトドアリビング/ガーデニング/with Kids/with Pets
周辺
田園都市線「高津」駅から徒歩12分、「二子新地」駅から徒歩14分の立地。
東京を代表するオシャレタウン「二子玉川」が徒歩圏内にあり、家族で散歩をしながら、気軽にセンスの良い環境を楽しめます。
ゆるやかに流れる多摩川の河川敷では、多くのランナーやサイクリスト、ペットを連れて散歩をする人が、豊かな緑とのんびりとした雰囲気を味わっています。
公園や緑地など憩いの場所も用意されているため、お弁当とレジャーシートを持参して、自然の中で家族の時間を楽しむのが日常の行事になりそうです。

外観
外観は”クレッセント”シリーズならではの端正なデザイン。
地上7階建の鉄筋コンクリート構造が堅牢な雰囲気で、周囲の植栽も整えられ、管理もしっかり行き届いている様子です。
敷地内駐車場が100%確保され、1台目が無償であることは嬉しいポイント。
ペットは2匹まで飼育可能で、犬との散歩に河川敷がすぐ近くにあるロケーションも魅力です。

メインエントランス
タイル貼りのエントランスは、シンプルながら重厚感のある佇まい。
段差のないフラットアプローチで、ベビーカーや荷物の多い日もスムーズに出入り可能です。
オートロックやモニター付きインターフォンを備え、セキュリティ面でも安心できそうです。

玄関
ブラウンのグラデーションで構成された、品のある玄関スペース。
空間が左右へ広がる“中入り玄関”の設計が、マンションではめずらしい、戸建てのようなゆとりと余裕を感じさせます。
天井まで高さのある玄関収納で、家族全員の靴もスッキリ収めることができるでしょう。

リビングダイニング
キッチンを合わせて15.3畳のリビングダイニング。
明るい色合いのフローリングとホワイトクロスの組み合わせが、明るく、清潔感あふれる雰囲気です。
一番のポイントは窓の先に広がる庭スペース。
プランターで植物を増やせば、緑に包まれる、ボタニカルな空間が演出できると思います。

家具は色数を抑え、庭に広がる、美しい緑を主役にしたいところ。
ベージュやオフホワイトを中心に、全体をアースカラーでまとめれば、ナチュラルで、居心地の良い空間ができあがるでしょう。
1階のため、階下への生活音を気にせず過ごせるのも、子育て世代には大きなメリット。
ウチとソトを自由に行き来して、家族でたくさんの思い出がつくれると良いですね。

テラス
庭スペースは約30㎡の広い空間。
憧れの”庭暮らし”を満喫する、とっておきの場所になりそうです。
まずは、庇に守られたテラス部分にテーブル&チェアをセットして、心地よい“アウトドアリビング”をつくりましょう。
外の空気に触れながら気分転換ができる、”もうひとつの居場所”が生まれます。

専用庭
専用庭部分では、”ガーデニング”はもちろん、家庭菜園に挑戦しても良いと思います。
自分で育てた「ブルーベリー」でジャムを作ったり、「ミント」でハーブティーを淹れてみたり、憧れで終わっていた”ナチュラルライフ”も、この庭でなら実現することができそうです。
これだけの広さがあれば、休日に親しい友人を招いて、にぎやかに過ごすのも楽しそう。
もちろんのんびり庭を眺めて過ごすだけで、素敵な時間を過ごすことができるでしょう。

キッチン
壁付きのキッチンは、上下に収納が確保された、使い勝手の良い仕様。
調理スペースがリビングから独立しているため、散らかっている様子が視界に入りにくく、プライバシー性の高い設計といえそうです。
うっすら木目の入ったホワイトカラーは清潔感があり、毎日の料理を軽やかに楽しめるデザイン。
吊り戸や引き出しの大容量収納に加え、浄水器内蔵の水栓や食洗機など、暮らしに嬉しい機能も搭載されています。

リビング脇個室
リビング脇の個室は5.2畳。
バルコニーに面した窓から緑が覗き、明るい光が差し込みます。
部屋に入るのに、リビングダイニングの家族と必ず顔を合わせる動線は、”センターリビング設計”ともいわれ、子育て家族に人気の考え方。
家族のコミュニケーションを促す効果もあり、子どもが小さいうちは、この場所を子ども部屋にするのが良さそうです。

サニタリー
ブラックの縁取りがアクセントになった、シャープで高級感のある洗面台。
幅広のカウンターは使い勝手が良く、大容量のキャビネットと背面のリネン庫で、収納力もしっかり確保されています。

1418サイズのバスルームは、子どもと一緒でもゆったり入れる広さです。
木目調パネルとワイドミラーが上質な雰囲気を演出し、一日の疲れをゆっくり癒せる、落ち着いた空間に仕上がっています。

個室
廊下脇の個室は7.7畳と4.5畳。
7.7畳の個室は、ベッドに加えてデスクやドレッサーも置ける、ゆったりとした広さです。
ウォークインクロゼットには、衣類はもちろん、季節の家電や旅行バッグもまとめて収納。
美しく、上質なインテリアの中で、夜も気持ち良く休むことができそうです。
(写真上)7.7畳個室
(写真下)ウォークインクロゼット


【リノベーション内容】
・ユニットバス交換
・トイレ交換
・建具交換
・壁、天井クロス貼り替え
・キッチン交換
・洗面化粧台交換
・フローリング貼り換え
【スタッフのひとこと】
こちらの物件はいかがでしたか?
田園都市線「高津」駅徒歩12分に立地。自然豊かな河川敷にほど近く、ゆるやかな水の流れとともにのんびりと暮らせる環境です。
74㎡の3LDKに、31㎡の庭スペースを加えた生活空間は、合計なんと100㎡!南から光の入る庭スペースでは、ペットとともに、“アウトドアリビング”や“ガーデニング”など、“庭のある暮らし”を満喫することが可能です。
2002年建築の新耐震設計で、家族が永く、安心して暮らせる物件です。
専用庭付きの部屋で、ゆとりあるスローライフを送りたいご家族に。
ぜひ、一度ご見学ください!
| 住所 | 川崎市高津区溝口6 |
|---|---|
| アクセス | 田園都市線「高津」駅徒歩12分 |
| 間取り | 3LDK |
| 広さ | 73.74㎡ |
| バルコニー | テラス12.78㎡、専用庭18.46㎡ |
| 構造 | 鉄筋コンクリート造 |
| 階層 | 7階建1階部分 |
| 総戸数 | 77戸 |
| 築年月 | 2002年2月 |
| 改装年月 | 2025年11月 |
| 現況 | 空室 |
|---|---|
| 引渡し可能年月 | 相談 |
| 管理会社 | 株式会社長谷工コミュニティ |
| 管理形態及び管理員の勤務形態 | 全部委託(日勤) |
| 土地権利 | 所有権 |
| ペット飼育 | 可 |
| その他 | 専用庭使用料:550円(月額) |
| 取引態様 | 媒介 |
スタイルが近い物件SIMILAR PROPERTY
-
中古マンション リノベ済
田園都市エリア(宮前平駅)
【新価格】パノラマ窓とルーバルの快適な家
70.67㎡
3899万円
#with Kids #with Pets #アウトドアリビング #ガーデニング
2026.05.18
-
中古マンション リノベ済
田園都市エリア(梶が谷駅)
森のテラスと暮らす家
77.85㎡
5298万円
#with Kids #with Pets #アウトドアリビング #ガーデニング
2026.05.16
-
中古マンション リノベ済
田園都市エリア(梶が谷駅)
高台から街を一望する、見晴らしの家
73.70㎡
3799万円
#with Kids #with Pets #アウトドアリビング #ガーデニング
2026.05.12
-
中古マンション リノベ済
田園都市エリア(たまプラーザ駅)
公園の緑景と暮らす、美しが丘の100㎡邸宅
97.82㎡
6490万円
#with Kids #with Pets #アウトドアリビング #ガーデニング
2026.05.09
-
中古マンション リノベ済
田園都市エリア(たまプラーザ駅)
窓いっぱいの緑に包まれる、明るく、さわやかな家
84.27㎡
3880万円
#with Kids #アウトドアリビング #ガーデニング
2026.05.04
-
中古マンション リノベ済
田園都市エリア(青葉台駅)
パノラマ緑景に癒される、青葉台8分の家
65.40㎡
6799万円
#with Kids #with Pets #アウトドアリビング #ガーデニング
2026.05.01
-
中古マンション リノベ済
田園都市エリア(鷺沼駅)
【新価格】4つの個室に陽だまりができる、鷺沼の家
82.33㎡
4490万円
#with Kids #with Pets #ガーデニング
2026.04.30
無料相談を
おこなっております!
物件を買いたい、物件を売りたい、
不動産について相談をしたい方は、
まずは無料相談へお問い合わせください。
コンサルタントがあなたのお話をお伺いさせていただきます。
-
物件の購入を考えているお客様
-
物件の売却を考えているお客様















