中古マンション
リノベ済
2025/10/22 1902 Views
大開口を緑で覆われる、美デザインの家
田園都市エリア(二子新地駅)
77.13㎡
#with Kids #with Pets #アウトドアリビング #ガーデニング
SOLD
物件のポイント
◎田園都市線「二子新地」駅徒歩15分。人気の「二子玉川」も徒歩圏内で、多摩川の自然とセンスの良い街並みの両方を満喫できる、バランスの取れた立地です。
◎大開口を緑で覆われたリビングダイニングは、避暑地のように、美しく、開放的な雰囲気。突板のフローリングや室内窓、グースネック水栓など、こだわりの詰まったデザインも見どころです。
◎2005年建築の新耐震設計で、リノベーションにアフターサービス保証付き。家族が永く、安心して暮らせる物件です。
物件概要
エリア田園都市エリア(二子新地駅)
金額 SOLD
住所川崎市高津区北見方2
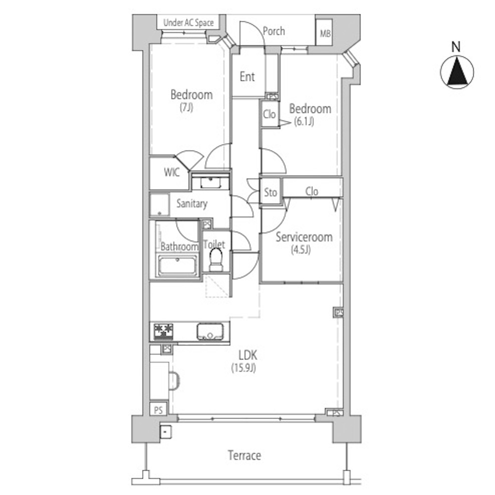
広さ77.13㎡+テラス12.80㎡
アクセス田園都市線「二子新地」駅徒歩15分
スタイルアウトドアリビング/ガーデニング/with Pets/with Kids
周辺
”満開の桜の春、夜空に彩られる花火の夏、川原の紅葉を描く秋、たくさんの野鳥に出会える冬。”
多摩川の自然豊かな環境を享受できる物件です。
「二子新地」駅周辺は生活に必要な店舗が揃うほか、最近はおしゃれなカフェや雑貨店が次々とオープン。
橋を渡れば「二子玉川」駅にも徒歩で行けるため、休日は充実したショッピング時間を過ごせるように思います。
物件目の前に「北見方2丁目公園」があり、学区の「東高津小学校」は物件の真裏に立地。
徒歩圏内に幼稚園、保育園も複数存在するなど、子育て環境も充実しています。
(写真)前面道路となる府中街道

外観
広い道路を前に、のびのびと佇むように建築された建物。
アウトフレームの頑丈な躯体に、かっちりとしたスクエアファサードが安定感を与えます。
2005年建築の築浅物件ということもあり、新築のような美しさが保たれています。
資産価値も維持しやすく、家族が永く、安心して暮らすことのできるマンションといえそうです。

メインエントランス&エントランスホール
さまざまな石タイルを組み合わせた、リゾート調のメインエントランス。
植栽スペースをたっぷり確保した、ゆとりある設計が特徴で、草木が季節を感じさせ、住まう人の暮らしを彩ります。

エントランスホールは石貼りの高級感ある空間。
大きなガラスがたっぷりと光をもたらし、開放感にもあふれ、毎日気持ち良く行き来することができそうです。
もちろん、オートロック、防犯カメラ、モニター付きインターフォンが完備されています。

玄関
素材感あるフローリングが白に映える、美しい玄関スペース。
タイルの可愛らしいデザインとリビング扉の大きな透明ガラスが、なんともいえないワクワク感をそそります。

リビングダイニング
リビングドアを開けると、大きな窓いっぱいに広がる、美しい緑に目を奪われます。
フローリングのぬくもりと調和した空間は、まるで避暑地にある別荘のよう。
「暮らしに緑があるっていいな」、そう思わせてくれる風景です。

木目あふれるナチュラルなインテリアは、性別を問わず、幅広い年代に受け入れらるでしょう。
オークのダイニングテーブルやライトグレーのファブリックソファなど、素材感を意識した家具選びをすることで、自然味のある、気持ちの良い場所が完成すると思います。

1階のため、階下への音にビクビクせず、子どもをあたたかく見守れることもポイントです。
テラス遊ぶ子どもを眺めながら、ゆっくりと時間を過ごすことこそ、新居購入の醍醐味になるのかもしれません。
リビングダイニング全面に床暖房も装備しています。

テラス
テラスは約12.8㎡。
上部を大きな庇が覆うため、テーブル&チェアをコーディネートして、リビングダイニング続きの”アウトドアリビング”をつくりあげてください。
南からのしっかりとした光も入ります。
フェンスで覆われ、周囲の視線も気にならないため、夏はビニールプールやテントを出して、子どもたちの秘密基地をつくってあげるのも楽しそう。
外部水栓が備わり、水やりもスムーズなので、”ガーデニング”にチャレンジするのもオススメです。

キッチン
キッチンは対面式のオープンタイプ。
シンク前からリビングダイニング全体と、その先の庭スペースを見渡し、家族と会話を楽しみながら調理することも可能です。
ホワイトのシステムキッチンは清潔感にあふれ、食洗機やグースネック水栓などの最新設備も備わります。
1階ならではの2連床下収納庫も、食品や備蓄品のストックに嬉しいスペースです。

リビング脇個室
4.5畳のリビング脇個室には、室内窓が設置され、リビングとのつながりをつくっています。
お互いの様子がうかがえるため、ファミリーライブラリやプレイルームに利用するのもアリですね。
子ども部屋にしても、ほどよい距離感で見守ることができるため、自立心を育みやすい環境となりそうです。

サニタリー
グレードの高い幅広の洗面台は、ツインライン照明を備えた最新設備。
天井まで高さのあるリネン庫も設計されており、タオルなど嵩張る物もすっきり収納することが可能です。
ダークグレーのタイルが洗練された雰囲気です。

浴室は、広々とした1418サイズ。
冷めにくい浴槽や乾きやすい床、節水シャワーなど、最新の機能に加え、浴室乾燥機も設置されており、雨の日や夜間の洗濯乾燥にも重宝します。

個室
玄関脇の個室は7畳と6.1畳のふたつ。
リビングダイニング同様、木質感あるフローリングで、美しいインテリアに仕上げられています。
7畳個室の収納は、嬉しいウォークインクロゼット方式。
衣類のほか、スーツケースやスポーツグッズなど、家族共用の荷物も仕舞っておくことができるでしょう。
(写真上)7畳個室
(写真下)6.1畳個室


【リノベーション内容】
・クロス張替
・フローリング張替
・フロアタイル張替
・建具交換
・システムキッチン交換
・ユニットバス交換
・洗面台交換
・トイレ交換
・配管更新ほか
※アフターサービス保証付き
【スタッフのひとこと】
こちらの物件はいかがでしたか?
田園都市線「二子新地」駅徒歩15分。人気の「二子玉川」も徒歩圏内で、多摩川の自然とセンスの良い街並みの両方を満喫できる、バランスの取れた立地です。
大開口を緑で覆われたリビングダイニングは、避暑地のように、美しく、開放的な雰囲気。突板のフローリングや室内窓、グースネック水栓など、こだわりの詰まったデザインも見どころです。
2001年建築の新耐震設計で、リノベーションにアフターサービス保証付き。家族が永く、安心して暮らせる物件です。
自然に囲まれた暮らしを満喫したいご家族に。
ぜひ、一度ご見学ください!
| 住所 | 川崎市高津区北見方2 |
|---|---|
| アクセス | 田園都市線「二子新地」駅徒歩15分 |
| 間取り | 3LDK |
| 広さ | 77.13㎡ |
| バルコニー | テラス12.80㎡ |
| 構造 | 鉄筋コンクリート造 |
| 階層 | 地下1階付7階建1階部分 |
| 総戸数 | 163戸 |
| 築年月 | 2005年11月 |
| 改装年月 | 2025年7月 |
| 現況 | 空室 |
|---|---|
| 引渡し可能年月 | 相談 |
| 管理会社 | 住友建物サービス株式会社 |
| 管理形態及び管理員の勤務形態 | 全部委託(常駐) |
| 土地権利 | 所有権 |
| ペット飼育 | 可 |
| その他 | - |
| 取引態様 | 媒介 |
| 管理費 | 19,400円(月額) |
| 修繕積立金 | 14,940円(月額) |
スタイルが近い物件SIMILAR PROPERTY
-
中古マンション リノベ済
田園都市エリア(宮前平駅)
【新価格】パノラマ窓とルーバルの快適な家
70.67㎡
3899万円
#with Kids #with Pets #アウトドアリビング #ガーデニング
2026.05.18
-
中古マンション リノベ済
田園都市エリア(梶が谷駅)
森のテラスと暮らす家
77.85㎡
5298万円
#with Kids #with Pets #アウトドアリビング #ガーデニング
2026.05.16
-
中古マンション リノベ済
田園都市エリア(梶が谷駅)
高台から街を一望する、見晴らしの家
73.70㎡
3799万円
#with Kids #with Pets #アウトドアリビング #ガーデニング
2026.05.12
-
中古マンション リノベ済
田園都市エリア(たまプラーザ駅)
公園の緑景と暮らす、美しが丘の100㎡邸宅
97.82㎡
6490万円
#with Kids #with Pets #アウトドアリビング #ガーデニング
2026.05.09
-
中古マンション リノベ済
田園都市エリア(たまプラーザ駅)
窓いっぱいの緑に包まれる、明るく、さわやかな家
84.27㎡
3880万円
#with Kids #アウトドアリビング #ガーデニング
2026.05.04
-
中古マンション リノベ済
田園都市エリア(青葉台駅)
パノラマ緑景に癒される、青葉台8分の家
65.40㎡
6799万円
#with Kids #with Pets #アウトドアリビング #ガーデニング
2026.05.01
-
中古マンション リノベ済
田園都市エリア(鷺沼駅)
【新価格】4つの個室に陽だまりができる、鷺沼の家
82.33㎡
4490万円
#with Kids #with Pets #ガーデニング
2026.04.30
無料相談を
おこなっております!
物件を買いたい、物件を売りたい、
不動産について相談をしたい方は、
まずは無料相談へお問い合わせください。
コンサルタントがあなたのお話をお伺いさせていただきます。
-
物件の購入を考えているお客様
-
物件の売却を考えているお客様














