中古マンション
リノベ済
2025/11/27 1709 Views
キッチンに家族が集まる、宮前平の家
田園都市エリア(宮前平駅)
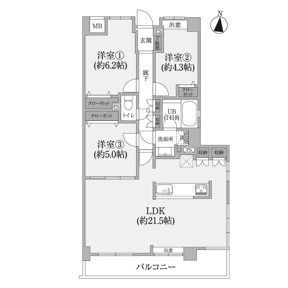
78.30㎡
#with Kids #アウトドアリビング #ガーデニング
SOLD
物件のポイント
◎田園都市線「宮前平」駅徒歩8分。美しい街路樹の中に、買い物施設をはじめ、学校や公園、クリニックが揃う、子育てのしやすいエリアです。
◎三方向から光と風が入る、78㎡のゆとりある角部屋。部屋の中心にアイランドキッチンを据えた、家族のコミュニケーションが弾む間取りです。
◎1996年建築の新耐震マンションで、リノベーションにアフターサービス保証が付き、家族が永く、安心して暮らせる物件です。
物件概要
エリア田園都市エリア(宮前平駅)
金額 SOLD
住所川崎市宮前区宮前平2
広さ78.30㎡+バルコニー10.17㎡
アクセス田園都市線「宮前平」駅徒歩8分
スタイルアウトドアリビング/ガーデニング/with Kids
周辺
物件の最寄りは、田園都市線「宮前平」駅。
街路樹が続き、公園が点在する、豊かな緑に包まれたエリアで、落ち着いた日常を過ごせる環境です。
周辺には、いくつかの大規模マンションを中心に、閑静な住宅街が広がります。
学区の「富士見台小学校」と「宮前平中学校」は文武両道の学校として有名で、県外から移り住む家族も多いとか。
生活の舞台となる「区役所前通り」には、スーパーや飲食店、クリニックも揃い、子育てファミリーが快適に暮らせるエリアといえそうです。
(写真)多くの垂れ幕がかかる「宮前平中学校」

外観
6階建て、総戸数26戸のコンパクトな建物。
スクエアファサードに、オーソドックスなベージュのタイルをまとった外観が、静かな街並みに違和感なく馴染んでいます。
前面道路は車通りが少なく、直線で見通しも良いため、車や自転車を安全に出し入れすることができそうです。

エントランスホール
エントランスホールは総石貼りの高級感ある空間です。
大きなガラスにより、明るく、開放感があり、毎日清々しい気持ちで行き来することができそうです。
建物内は清潔感にあふれ、隅々まで手入れが行き届いている様子。
オートロックにモニター付きインターホン、防犯カメラが完備されているため、セキュリティ面も安心です。

玄関
木目が美しく、あたたかみを感じる玄関スペース。
框がほとんどないフラット仕様のため、出入りがスムーズで、スペースを広く感じさせる効果も期待できます。
廊下中ほどに、二箇所の収納が備わるため、日用品の整理に苦労することもなさそうです。

リビングダイニング
広々としたリビングダイニングは、キッチンを合わせて21.5畳!
壁のほとんどが窓のような、開放感あふれる空間の中で、風と光を感じながら、心地良い時間を過ごすことができそうです。

木目を活かしたインテリアは透明感があり、明るく、優しい雰囲気を感じます。
ホワイトやブラックの家具に、アンティーク調の小物を添えた、フレンチシックスタイルなどいかがでしょうか。
流行りのグレイッシュインテリアにもバッチリ調和しそうです。

日当たりの良い窓際には、大きめのグリーンをセットしましょう。
外の視線もやわらかく遮ってくれるため、より快適な時間を過ごすことができると思います。
ダウンライトに加え、天井には光のラインが美しい間接照明も。
夜は洗練された空間の中、夫婦で大人の時間を過ごすことができそうです。

バルコニー
日差しがたっぷり入る、約10㎡のバルコニー。
ちょっとした花台を備えているため、好きな植物を設置して、緑を感じるバルコニーづくりにチャレンジしてみてください。
奥行きがあるため、コンパクトなテーブルとチェアも用意しておきましょう。
ウッドパネルや人工芝を敷くことで、想像以上に快適な庭空間ができると思います。

キッチン
部屋の中心に鎮座するキッチンは、左右どちらからでも行き来ができるアイランドタイプ。
フルオープンのため、リビングダイニングと一体化して、素晴らしい開放感をともないます。
明るい木目柄が清々しく、家具のような佇まいです。
人造大理石の天板が傷に強く、メンテナンスしやすいのもポイントで、浄水器一体型のハンドシャワー水栓や食器洗い乾燥機も搭載されています。

リビング脇個室
リビング脇5畳の個室は、引き戸を開放することで、LDKとひと続きの大空間に。
子どもの遊び場や家事室など、さまざまな場面に対応できる上、収納スペースを利用して、リビングを美しく保てるのもメリットです。

サニタリー
洗面室は、白とモルタル調のタイルが洗練された雰囲気。
洗面台の大きなキャビネットに加え、壁面を活用したリネン庫も用意されています。

バスルームはやわらかい木目に包まれた空間。
浴室換気乾燥機に保温浴槽、節水シャワーヘッドなど、ハイスペックな機能が揃っています。
窓があり、明るく、開放感があるのも◎
美しいバスルームで、気持ちの良いバスタイムを過ごしましょう!

個室
個室は、6.2畳と4.3畳のふたつ。
北側の窓から光が差し込み、ホワイトベースのインテリアを、より一層明るく感じさせてくれています。
4.3畳個室の出窓カウンターは、アートやグリーンなど、お気に入りの小物を飾る、ちょうど良い場所になりそうですね。
(写真)6.2畳個室

【リフォーム内容】
・フローリング張替
・クロス貼替
・トイレ新規交換
・キッチン新規交換
・洗面台新規交換
・ユニットバス新規交換
・給湯器交換
・給排水配管更新
※アフターサービス保証付
【スタッフのひとこと】
こちらの物件はいかがでしたか?
田園都市線「宮前平」駅徒歩9分。美しい街路樹の中に、買い物施設をはじめ、学校や公園、クリニックが揃う、子育てのしやすいエリアです。
三方向から光と風が入る、78㎡のゆとりある角部屋。部屋の中心にアイランドキッチンを据えた、家族のコミュニケーションが弾む間取りです。
1996年建築の新耐震マンションで、リノベーションにアフターサービス保証が付き、家族が永く、安心して暮らせる物件です。
明るい光と風に包まれた、快適な暮らしを手に入れたいご家族に。
ぜひ一度、ご見学ください!
| 住所 | 川崎市宮前区宮前平2 |
|---|---|
| アクセス | 田園都市線「宮前平」駅徒歩8分 |
| 間取り | 3LDK |
| 広さ | 78.30㎡ |
| バルコニー | 10.17㎡ |
| 構造 | 鉄筋コンクリート造 |
| 階層 | 6階建5階部分 |
| 総戸数 | 26戸 |
| 築年月 | 1996年2月 |
| 改装年月 | 2025年9月 |
| 現況 | 空室 |
|---|---|
| 引渡し可能年月 | 相談 |
| 管理会社 | 株式会社東急コミュニティー |
| 管理形態及び管理員の勤務形態 | 全部委託(日勤) |
| 土地権利 | 所有権 |
| ペット飼育 | 不可 |
| その他 | - |
| 取引態様 | 媒介 |
| 管理費 | 25,300円(月額) |
| 修繕積立金 | 19,240円(月額) |
スタイルが近い物件SIMILAR PROPERTY
-
中古マンション リノベ済
田園都市エリア(宮前平駅)
白く、美しい、宮前平の角部屋
68.79㎡
5890万円
#with Kids #with Pets #アウトドアリビング #ガーデニング
2026.04.17
-
中古マンション リノベ済
田園都市エリア(宮前平駅)
【新価格】駅5分の地階にある、90平米超の秘密基地
94.77㎡
6980万円
#with Kids #with Pets #アウトドアリビング #ガーデニング
2026.04.16
-
中古マンション
田園都市エリア(宮崎台駅)
ウォルナットが美しい、築浅&駅6分のレジデンス
70.40㎡
7199万円
#with Kids #with Pets #アウトドアリビング #ガーデニング
2026.04.14
-
中古マンション リノベ済
田園都市エリア(市が尾駅)
【新価格】光あふれる、88平米のゆとりある家
88.05㎡
4499万円
#with Kids #with Pets #アウトドアリビング #ガーデニング
2026.04.13
-
中古マンション リノベ済
田園都市エリア(たまプラーザ駅)
【新価格】市場を味わい公園をくつろぐ、緑景の家
66.56㎡
4480万円
#with Kids #with Pets #アウトドアリビング #ガーデニング
2026.04.12
-
中古マンション リノベ済
田園都市エリア(たまプラーザ駅)
【新価格】フルオープンテラスと暮らす家
76.20㎡
4598万円
#with Kids #with Pets #アウトドアリビング #ガーデニング
2026.04.11
-
中古マンション リノベ済
田園都市エリア(武蔵中原駅)
窓外を緑で覆われる、パークサイドの家
60.88㎡
4990万円
#with Kids #アウトドアリビング #ガーデニング
2026.04.09
無料相談を
おこなっております!
物件を買いたい、物件を売りたい、
不動産について相談をしたい方は、
まずは無料相談へお問い合わせください。
コンサルタントがあなたのお話をお伺いさせていただきます。
-
物件の購入を考えているお客様
-
物件の売却を考えているお客様
















