中古マンション
リノベ済
2026/02/01 2068 Views
光と緑に包まれる、100㎡の最上階角部屋
世田谷エリア(桜新町駅)
102.05㎡
#with Kids #ガーデニング
SOLD
物件のポイント
◎田園都市線「桜新町」駅徒歩12分。都心へのアクセスと静かな住環境を両立できるロケーションです。
◎光と風をたっぷり取り入れる、最上階の南東角部屋。どの場所にいても窓外に豊かな緑を感じられる、100平米超のゆとりある住まいです。
◎1983年建築の新耐震設計で、家族が永く、安心して暮らせる物件です。
物件概要
エリア世田谷エリア(桜新町駅)
金額 SOLD
住所世田谷区弦巻3
広さ102.05㎡+バルコニー6.85㎡
アクセス田園都市線「桜新町」駅徒歩12分
スタイルガーデニング/with Kids
周辺
今回の物件がある「弦巻」は、豊かな緑と共存する住宅街。
田園都市線「桜新町」駅と世田谷線「上町」駅に、徒歩10分前後でアクセスできる、利便性の高いエリアです。
マンション周辺に教育施設が揃い、中でも「区立松丘小学校」は徒歩3分の距離。
小学校の隣にある「区立中央図書館」は、プラネタリウム併設の魅力的なスポットで、子育てファミリーにとって、なくてはならない場所になるかもしれません。
(写真)徒歩3分にある「区立松丘小学校」

外観
「桜新町」のメインストリートを歩くこと12分。
ベージュのタイルを豊かな緑が覆う、5階建ての低層マンションがあらわれます。
建物は1985年建築の新耐震設計で、直近では2017年に大規模修繕工事を終えています。
良好な管理体制のおかげか、約40年という年数を感じさせない美しさを保っているようです。

メインエントランス
メインエントランスは、道路から少し奥まった位置。
ドーム型のキャノピーがちょっぴり年代を感じさせますが、外の視線を遮りつつ、天井から光を取り入れる、機能性にも優れたデザインです。
フラットアプローチのため、バギーやキャリーケースの移動に負担はありません。

玄関
室内は白とグレーの上品な色合い。
窓から入る光が、明るく、開放感ある雰囲気をつくります。
調湿・消臭機能が備わるエコカラットが、室内の空気をスッキリ整えてくれているよう。
二箇所の廊下収納は、靴以外にも、来客用スリッパや掃除道具をしまう場所に役立つでしょう。

リビングダイニング
20畳のLDKは、南と東の窓から光がたっぷり差し込む、明るい場所。
二面開口ならではの開放感に、窓外に覗く緑が癒やしの雰囲気を加え、気持ちの良さそうな空間が完成しています。

下がり天井に間接照明を埋め込むなど、細部へのこだわりも感じます。
アッシュ調のフローリングとグレースタッコのキッチンも、流行りのグレイッシュインテリアに調和してくれるでしょう。

これだけのスペースがあれば、家族全員がゆったりとした時間を過ごせます。
6人掛けの大きなダイニングテーブルに、大きなL型ソファー。
ダイニングでおしゃべりをしながら、同時にリビングでゲームを楽しむなど、家族がいつもここに集まり、一緒の時間を楽しむことができそうです。

バルコニー
バルコニーは二箇所にありますが、メインはリビングに接続するバルコニー。
最上階から世田谷の街並みを見下ろしつつ、手を伸ばせば届きそうなほど、近くに緑を感じられる特等席です。
南東向きのため、光も入りやすく、ちょっとした“ガーデニング”も可能です。
ウッドデッキ&お気に入りチェアで、“アウトドアリビング”の準備もお忘れなく。
(写真下)最上階からの眺望


キッチン
キッチンは開放感のあるオープンタイプ。
スタッコ調の面材は今流行のデザインで、大人の夫婦も満足できる、ハイグレードな仕様になっています。
食洗機や浄水器付きの水栓、3口コンロなど、機能も充実しているため、毎日の調理を気持ちよく楽しむことができるでしょう。

サニタリー
グレーをメインカラーにした、上質感漂うサニタリー。
ダブルボウルの洗面台は特別感があり、忙しい朝でも家族がそれぞれのペースで身支度できるのがメリットです。
大きな収納庫を備えるため、嵩張るリネン類もスッキリ収納できるでしょう。

バスルームはややコンパクトな1317サイズ。
大理石調のパネルがラグジュアリーな雰囲気で、アロマキャンドルやバスソルトで、贅沢な時間を過ごしたくなるインテリアです。
浴室乾燥機をはじめ、最新の機能も備えます。

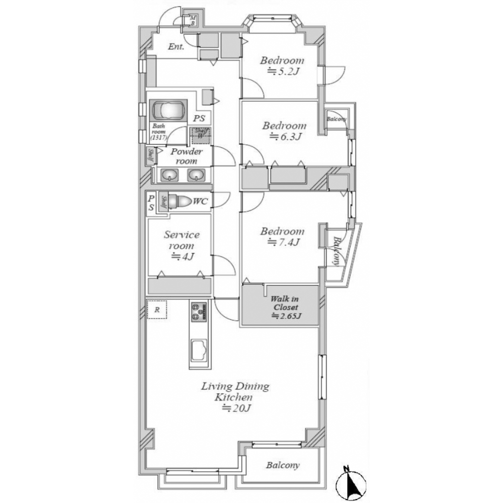
個室
廊下から出入りする個室は合計よっつ。
7.4畳の個室は十分な広さが確保され、大きなウォークインクローゼットにバルコニーも備わり、主寝室として申し分のない条件が揃っています。
窓際にテーブル&チェアを設置して、夫婦でグリーンを楽しむのも良いですね。
(写真上)7.4畳個室
(写真下)7.4畳個室のウォークインクロゼット


6.3畳と5.2畳の個室も、窓外を美しい緑が覆います。
リビングダイニングとの距離を確保しているため、静かで、質の高い個人時間を過ごすことができそうです。
(写真上)6.3畳個室
(写真下)5.2畳個室


【リノベーション内容】
・全室クロス張替
・全室フローリング上貼り
・クッションフロア張替
・キッチン交換
・洗面化粧台交換
・ユニットバス交換
・トイレ交換
・給湯器交換
・給排水管更新
【スタッフのひとこと】
こちらの物件はいかがでしたか?
田園都市線「桜新町」駅徒歩12分。都心へのアクセスと静かな住環境を両立できるロケーションです。
光と風をたっぷり取り入れる、最上階の南東角部屋。どの場所にいても窓外に豊かな緑を感じられる、100平米超のゆとりある住まいです。
1983年建築の新耐震設計で、家族が永く、安心して暮らせる物件です。
広く、開放的な住まいで、のびのびと子育てをしたいご家族に。
ぜひ、一度ご見学ください!
| 住所 | 世田谷区弦巻3 |
|---|---|
| アクセス | 田園都市線「桜新町」駅徒歩12分 |
| 間取り | 3SLDK |
| 広さ | 102.05㎡ |
| バルコニー | 6.85㎡ |
| 構造 | 鉄筋コンクリート造 |
| 階層 | 地下1階付5階建5階部分 |
| 総戸数 | 35戸 |
| 築年月 | 1983年6月 |
| 改装年月 | 2025年7月 |
| 現況 | 空家 |
|---|---|
| 引渡し可能年月 | 相談 |
| 管理会社 | 三井不動産レジデンシャルサービス株式会社 |
| 管理形態及び管理員の勤務形態 | 全部委託(巡回) |
| 土地権利 | 所有権 |
| ペット飼育 | 不可 |
| 取引態様 | 媒介 |
| 管理費 | 34,700円(月額) |
| 修繕積立金 | 28,778円(月額) |
スタイルが近い物件SIMILAR PROPERTY
-
中古マンション リノベ済
田園都市エリア(溝の口駅)
ノクチを眼下に収める、男前インテリアの家
62.40㎡
7180万円
#with Kids #with Pets #アウトドアリビング #ガーデニング
2026.03.17
-
中古マンション リノベ済
田園都市エリア(宮前平駅)
【新価格】駅5分の地階にある、90平米超の秘密基地
94.77㎡
7280万円
#with Kids #with Pets #アウトドアリビング #ガーデニング
2026.03.16
-
中古マンション リノベ済
田園都市エリア(たまプラーザ駅)
眺望と陽だまりが気持ち良い、たまプラ高台の家
68.68㎡
5298万円
#with Kids #アウトドアリビング #ガーデニング
2026.03.14
-
中古マンション リノベ済
田園都市エリア(鷺沼駅)
開放的な景色と、悠々自適に暮らす家
65.47㎡
2998万円
#with Kids #アウトドアリビング #ガーデニング
2026.03.11
-
中古マンション リノベ済
田園都市エリア(溝の口駅)
【新価格】ノクチを見下ろす、地上31階の家
78.28㎡
8680万円
#with Kids #with Pets #アウトドアリビング #ガーデニング
2026.03.09
-
中古マンション リノベ済
田園都市エリア(あざみ野駅)
「美しが丘」を味わう、ゆったりバルコニーの家
64.86㎡
5690万円
#with Kids #with Pets #アウトドアリビング #ガーデニング
2026.03.07
-
中古マンション リノベ済
田園都市エリア(市が尾駅)
陽の光とモカブラウンの心地よい家
73.59㎡
5498万円
#with Kids #with Pets #アウトドアリビング #ガーデニング
2026.03.05
最近見た物件RECENTLY PROPERTY
無料相談を
おこなっております!
物件を買いたい、物件を売りたい、
不動産について相談をしたい方は、
まずは無料相談へお問い合わせください。
コンサルタントがあなたのお話をお伺いさせていただきます。
-
物件の購入を考えているお客様
-
物件の売却を考えているお客様















