中古マンション
リノベ済
2025/11/01 732 Views
陽だまりに癒される、駅2分最上階の家
田園都市エリア(宮前平駅)
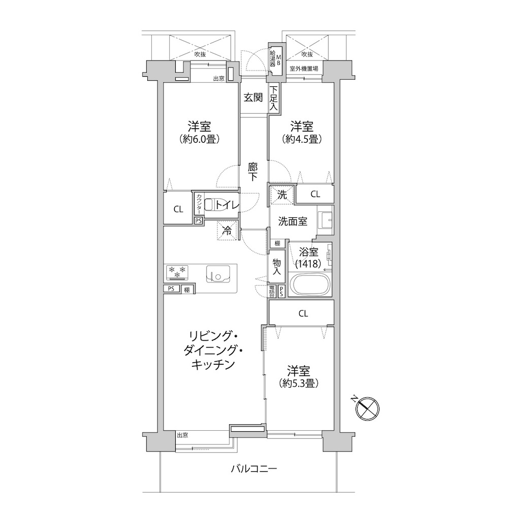
68.46㎡
#with Kids #アウトドアリビング #ガーデニング
6999万円
物件のポイント
◎田園都市線「宮前平」駅徒歩2分の希少物件。スーパーやレストランをはじめ、区役所や警察署が近隣に揃う、利便性の高い立地です。
◎たっぷりとした陽だまりができる、あたたかく、快適な最上階の部屋。リビングに接続する、南西向きのバルコニーは奥行きがあり、“ガーデニング”や“アウトドアリビング”など、家族で“庭のある暮らし”も楽しめます。
◎1996年建築の新耐震設計で、リノベーションにアフターサービス保証付き。家族が永く、安心して暮らせる物件です。
物件概要
エリア田園都市エリア(宮前平駅)
金額 6,999万円
住所川崎市宮前区土橋1
広さ68.46㎡+ワイドバルコニー10.2㎡
アクセス田園都市線「宮前平」駅徒歩2分
スタイルアウトドアリビング/ガーデニング/with Kids
周辺
広い道路と豊かな緑をたくわえた街「宮前平」。
渋谷まで約30分で到着する利便性と、文化的で洗練されたイメージが、人々を魅了してやまない理由でしょう。
今回の物件は「宮前平」駅から徒歩2分という立地。
スーパーやドラッグストアなど、日常の買い物施設に加え、図書館を収容する宮前区の総合庁舎や郵便局などの公共施設、銀行やクリニックなど、その他の施設もすべて徒歩10分圏内に揃った素晴らしい環境が整います。
質の高い教育で有名な「富士見ヶ丘小学校」と「宮前平中学校」も至近距離に位置。
遊び場として重宝しそうな「宮前平公園」も徒歩4分に存在するため、安心して子育てができる環境ともいえそうです。
遠方から通うファンも多い温泉施設、「湯けむりの庄」が近接するのもポイントです。
仕事で疲労した心身を、近くの天然温泉、岩盤浴、マッサージで癒せるのは、忙しい現代人にとって大きな魅力となるでしょう。
”駅から徒歩2分で帰宅し、天然温泉を我が家の風呂のように利用する”。
特に共働きの夫婦にとって、ほかにはない、素敵な条件が揃っているように感じます。
(写真)遠方からもファンが通う温泉施設「湯けむりの庄」

外観
高台に立地するため、住戸は豊かな光と風に恵まれます。
メインの接道である北東の道路は「富士見坂」と呼ばれ、駅まで続く道のりを、美しいケヤキ並木が彩ります。
建物は総戸数78戸の低層づくり。
横に長く伸びる躯体は邸宅のような迫力があり、アースカラーのタイルが初夏の新緑や秋の紅葉とも調和して、素敵な街並みを演出してくれるでしょう。

メインエントランス&ホール
メインエントランスは、坂の途中に配置された入り口から、長い通路を抜けた奥。
大きなガラス、重厚感のある木製扉、大きな天窓など、1990年代らしい、贅沢な設計で構成されています。

エントランスホール
リゾートホテルを思わせる、広々としたエントランスホール。
曲線の巨大ガラス窓で囲まれた空間は開放感にあふれ、ところどころ配置されたアートから品のある佇まいを感じます。
築20年を超える物件ですが、あらゆる場所が美しい状態に維持されていて、細かく丁寧な管理が行き届いている様子がうかがえます。

玄関
玄関の中は、白をベースとした清潔感のあるインテリアが広がります。
光沢ある石タイルや質の良いフローリングなど、シンプルなデザインの中に、こだわりのある、上質な設計が盛り込まれているようです。

リビングダイニング
リビングダイニングは、キッチンと合わせて12畳ほど。
数字だけみるとそう大きな空間ではないのですが、窓の外に奥行きあるバルコニーが接続、さらにその奥に空が続くこともあり、広々と、開放的な雰囲気です。
何より、部屋の奥まで届く、大きな陽だまりがあたたかく、とても快適そうな印象です。

幅広のフローリングは高級感があり、そのオーソドックスな色合いがどんなテイストも受け入れてくれるでしょう。
石目調の美しいタイルを背景に、素材感のある、ナチュラルインテリアでまとめるのが良いかもしれません。
たとえば、リビング扉のウォールナットカラーを主役に、無垢の木素材で茶色のグラデーションを楽しんだり、あるいは濃茶と白でモノトーンを意識したコーディネートをつくりあげるのも素敵です。
品を感じる建物に合わせ、大人の雰囲気がある、上質なアイテムをチョイスしたいですね。

リビングスペース前には、グリーンを並べることのできる、素晴らしい日当たりの出窓カウンターが備わります。
美しい緑が家族の団らんを美しく演出してくれることでしょう。

バルコニー
南西向きで日当たりの良い、10㎡超のワイドバルコニー。
奥行きも確保されているため、ウッドパネルとお気に入りのチェアで小さな”アウトドアリビング”も楽しめそう。
光と風の入る格子状手すり前をプランタースペースに、グリーンをたくさん並べて、カラフルなベランダガーデンをつくりあげたいものですね。

高台に建つため、周りの建物からの視線も気にならず、最上階から広がる気持ちの良い眺望を堪能できそうです。
広い空と太陽の光に包まれる空間で、室内では感じることのできない、贅沢な時間を過ごすことができることでしょう!

リビング脇個室
リビング脇には5.3畳の個室が接続します。
寝室など、個室としての利用も可能ですが、引き戸を開放して、リビング続きの空間として利用するのがオススメです。
リビングから子どもの遊んでいる様子を確認できる"プレイルーム"、もしくは家族共有の”ファミリーライブラリー”はいかがですか。

キッチン
マットホワイトが美しい、家具のような佇まいのシステムキッチン。
シンク正面に出窓が位置するため、外に広がる景色を眺め、気持ち良く調理することができそうです。
掃除が楽な人大カウンターやスリムなフラットレンジフードのほか、食洗機や浄水器一体水栓など、高い機能が詰まった最新の設備であることも特徴です。

サニタリー
洗面室は、グレートーンの落ち着きある空間です。
洗面台は天板とボールが一体となり、上部吐水水栓を備えた最新タイプ。
入り口付近に可動棚付きのリネン庫も設計されているため、常に美しく、清潔な状態を維持できるでしょう。

浴室は、ダークトーンの木調パネルがあしらわれた、高級感のある仕様です。
ゆったりと足を伸ばせる浴槽に加え、浴室乾燥機や節水シャワー、乾きやすい床など、最新の機能も備えます。

個室
北側に配置された個室は、6畳と4.5畳のふたつ。
両部屋とも柱やパイプシャフトなどの凸凹がなく、広々とした空間を確保しています。
窓が共用廊下に接していないため、プライバシーを守りながら、快適に過ごせることもポイントです。
収納内部にも可動棚を備え、使いやすさへの配慮が加えられています。
(写真上)6畳個室
(写真下)可動棚付きの収納スペース


【リノベーション内容】
・全室フローリング張替
・全室クロス張替
・フロアタイル張替
・建具新規交換
・システムキッチン新規交換
・ユニットバス新規交換
・洗面台新規交換
・トイレ新規交換
※アフターサービス保証付き
【スタッフのひとこと】
こちらの物件はいかがでしたか?
田園都市線「宮前平」駅徒歩2分の希少物件です。
スーパーやレストランをはじめ、区役所や警察署が近隣に揃う、利便性の高い立地です。
たっぷりとした陽だまりができる、あたたかく、快適な最上階の部屋。リビングに接続する、南西向きのバルコニーは奥行きがあり、“ガーデニング”や“アウトドアリビング”など、家族で“庭のある暮らし”も楽しめます。
1996年建築の新耐震設計で、リノベーションにアフターサービス保証が付き、家族が永く、安心して暮らせる物件です。
教育や治安など高いレベルの子育て環境を求めるご家族、駅近に加えて豊かな生活環境も求める共働きのご家族にもオススメです。
ぜひ一度、ご見学ください!
| 住所 | 川崎市宮前区土橋1 |
|---|---|
| アクセス | 田園都市線「宮前平」駅徒歩2分 |
| 間取り | 3LDK |
| 広さ | 68.46㎡ |
| バルコニー | 10.2㎡ |
| 構造 | 鉄筋コンクリート造 |
| 階層 | 5階建5階部分 |
| 総戸数 | 78戸 |
| 築年月 | 1996年3月 |
| 改装年月 | 2025年9月 |
| 現況 | 空室 |
|---|---|
| 引渡し可能年月 | 相談 |
| 管理会社 | 大和ライフネクスト株式会社 |
| 管理形態及び管理員の勤務形態 | 全部委託(日勤) |
| 土地権利 | 所有権 |
| ペット飼育 | 不可 |
| その他 | 町内会費:200円(月額) |
| 取引態様 | 媒介 |
| 管理費 | 10,600円(月額) |
| 修繕積立金 | 12,400円(月額) |
スタイルが近い物件SIMILAR PROPERTY
-
中古マンション リノベ済
田園都市エリア(たまプラーザ駅)
三方の光と風と暮らす、犬蔵の家
79.75㎡
6890万円
#with Kids #アウトドアリビング #ガーデニング
2025.11.18
-
中古マンション リノベ済
田園都市エリア(武蔵中原駅)
【新価格】緑に包まれて暮らす、庭付きの家
70.03㎡
4398万円
#with Kids #with Pets #アウトドアリビング #ガーデニング
2025.11.17
-
中古マンション リノベ済
田園都市エリア(溝の口駅)
安心快適、ノクチのタワマン暮らし
75.64㎡
7680万円
#with Kids #with Pets #アウトドアリビング #ガーデニング
2025.11.15
-
中古マンション
田園都市エリア(あざみ野駅)
【新価格】あざみ野の庭付き100㎡邸宅
97.79㎡
5880万円
#with Kids #with Pets #アウトドアリビング #ガーデニング
2025.11.14
-
中古マンション リノベ済
世田谷エリア(三軒茶屋駅)
三茶最上階の、日差しあふれる東南角部屋
60.72㎡
6980万円
#with Kids #アウトドアリビング #ガーデニング
2025.11.13
-
中古マンション リノベ済
田園都市エリア(藤が丘駅)
【新価格】のびのび暮らす、100㎡の南東角部屋
100.36㎡
4999万円
#with Kids #with Pets #アウトドアリビング #ガーデニング
2025.11.11
-
中古マンション リノベ済
田園都市エリア(あざみ野駅)
【新価格】Beauty & Healthyな80㎡団地暮らし
81.18㎡
3299万円
#with Kids #アウトドアリビング #ガーデニング
2025.11.10
無料相談を
おこなっております!
物件を買いたい、物件を売りたい、
不動産について相談をしたい方は、
まずは無料相談へお問い合わせください。
コンサルタントがあなたのお話をお伺いさせていただきます。
-
物件の購入を考えているお客様
-
物件の売却を考えているお客様














