中古マンション
リノベ済
2026/04/09 220 Views
窓外を緑で覆われる、パークサイドの家
田園都市エリア(武蔵中原駅)
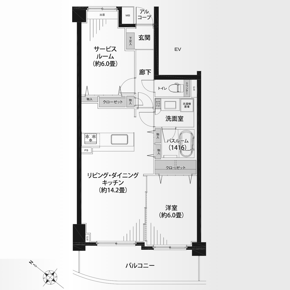
60.88㎡
#with Kids #アウトドアリビング #ガーデニング
4990万円
物件のポイント
◎南武線「武蔵中原」駅から徒歩7分。「溝の口」や「武蔵小杉」などの人気駅に近く、利便性の高い立地が魅力です。
◎約60㎡の、ゆったりとした1SLDKの間取り。公園の緑に包まれるバルコニーでは、家族で“アウトドアリビング”や“ガーデニング”を楽しめます。
◎1996年建築の新耐震ブランドマンションで、リノベーションにアフターサービスが付き、家族が永く、安心して暮らせる物件です。
物件概要
エリア田園都市エリア(武蔵新城駅)
金額 4,990万円
住所川崎市中原区上小田中6
広さ60.88㎡+ワイドバルコニー12.11㎡
アクセス南武線「武蔵中原」駅徒歩7分
スタイルアウトドアリビング/ガーデニング/with Kids
周辺
南武線「武蔵中原」駅から徒歩7分。
都心から近く、「溝の口」や「武蔵小杉」など、人気駅へのアクセスの良い、暮らしやすいエリアです。
約400,000㎡の広大な敷地に、陸上競技場やサッカー場などの運動場、博物館と美術館が融合した市民ミュージアム、釣りを楽しめる池など、数多くの施設を備える「等々力緑地」が近接するのも特徴です。
各施設の周囲に豊かな緑が配置されていて、散歩や休憩など、多くの市民に、”憩いの場所”として利用されているようです。
陸上競技場はJリーグ「川崎フロンターレ」のホームスタジアムとなっていて、試合開催日には多くのファンでにぎわいます。
サッカー好きの子どもであれば、憧れの場所を身近に暮らすことが、何よりの思い出になることでしょう。
(写真)広大な敷地に緑があふれる「等々力緑地」

外観
赤みあるタイルがやわらかな印象の、5階建て低層マンション。
緑が多く、歩道付きの道路も広々としていて、ゆったりとした雰囲気を感じる街並みです。
建物は1996年の建築で、新耐震基準をクリアしているため、家族が永く、安心して暮らせる物件といえるでしょう。

目の前に広がる公園は、物件の価値を高めてくれる存在です。
部屋から視界いっぱいに広がる緑が、日々の過ごし方まで変えてくれると思います。

メインエントランス
御影石調のタイルで仕上げられたメインエントランスは、黒とグレーを基調とした、高級感ある佇まい。
植栽も丁寧に整えられており、良好な日々の管理体制も確認できます。
目の前の道路には歩道が付き、車通りも少ないので、小さな子どもがいる家族も安心して暮らすことができるでしょう。

玄関
ホワイトの建具と質感あるフローリング。
シンプルにまとめられた空間は清潔感があり、ナチュラルで清々しい印象を覚えます。
身だしなみを整えるための全身鏡は、空間を広く見せる効果も発揮してくれます。

リビングダイニング
リビングダイニングは、キッチンを合わせて14.2畳。
南西向きの窓からたっぷりと光が入る、明るく、気持ちの良い空間です。
窓の外を、樹木の緑で覆われているのが最大のポイントになるでしょう。
風にそよぐ葉音や鳥のさえずりをBGMに、ただのんびりと過ごしたい気持ちになってきます。

木目の美しいフローリングに、風合いのあるエコカラットが調和。
窓外の緑と相まって、ナチュラルでありながら、どこか洗練された雰囲気を感じます。
壁面に仕込まれた間接照明など、デザイン性を高め、美しく暮らすための細かい工夫も盛り込まれています。

家具がセットで販売されていることも魅力のひとつ。
天然木のダイニングテーブルやベージュのファブリックソファが選択され、あたたかみのある、美しいインテリアが完成しています。
余った予算をこだわりの小物に回して、憧れの空間を完成できると良いですね。

バルコニー
バルコニーは約12㎡。
奥行きがあり、陽射しもしっかり差し込むため、床にウッドパネルを敷いて、快適な”アウトドアリビング”をつくってみるのはいかがでしょうか。
コンパクトなテーブルとチェアを並べて、グリーンをセットすれば、カフェテラスのような空間に。
晴れた日は朝のコーヒーを楽しんだり、雨の日は公園を眺めてのんびりと考え事なども良さそうです。

公園のおかげで前面に大きな空間が広がるため、周りの建物からの視線も気にならず、緑のある、気持ちの良い眺望を味わえます。
我が子の姿を確認できるのも、子育て家族には嬉しいポイントになりそうです。

リビング脇個室
6畳のリビング脇個室は、日当たり、風通しともに良好です。
3枚の引き戸は床にレールのないバリアフリー設計で、開放して、リビングとフラットにつなげることが可能です。
リビングからも目が行き届くため、ラグを敷いて子どものお昼寝スペースにしたり、ちょっとした家事を済ませたり、家族のマルチスペースとして活用するのが良いのでしょう。
窓の外に広がる美しい緑景を眺めながら、幸せな時間を過ごすことができそうですね。

キッチン
木目の美しいシステムキッチンは、外の光を感じられる明るい場所に。
対面式のオープンタイプのため、ダイニングの家族と会話をしたり、バルコニーの緑を眺めながら調理をおこなうことも可能です。
食洗機にスリムレンジフード、浄水器内蔵水栓も備わり、満足のゆくキッチンに仕上がっています。

サニタリー
清潔感のある、ホワイトカラーの洗面台。
上部吐水水栓やカウンター一体型のボウルなど、掃除の負担を軽減するための工夫が盛り込まれた、最新型の設備です。
嬉しいのは高さのあるサイドキャビネット。
家族分の嵩張るタオルも整理して収めることができるでしょう。

ブラウンの木目調パネルはホテルのような雰囲気。
1416サイズの広いスペースで、子どもと一緒の入浴もゆっくりくつろぐことができそうです。
水はけのよい床や節水シャワーなど、最新の機能が備わるグレードの高い設備です。

個室
玄関脇の個室は6畳。
しっかりとした広さを確保し、リビングと離れたプライベート性があるため、夫婦の寝室利用が王道でしょうか。
白に調和する、グレージュのアクセントクロスも印象的。
お気に入りの家具を揃えて、自分らしい、癒しのインテリアを完成すると良いですね。

【リノベーション内容】
・給湯器交換
・システムキッチン交換
・ユニットバス交換
・洗面台交換
・トイレ交換
・CF張替
・全室クロス張替
・全フローリング張替
・照明器具設置
・全建具交換
※アフターサービス保証付
※家具、エアコン付
【スタッフのひとこと】
こちらの物件はいかがでしたか?
南武線「武蔵中原」駅から徒歩7分。
「溝の口」や「武蔵小杉」などの人気駅に近く、利便性の高い立地が魅力です。
約60㎡の、ゆったりとした1SLDKの間取り。
公園の緑に包まれるバルコニーでは、家族で“アウトドアリビング”や“ガーデニング”を楽しめます。
1996年建築の新耐震ブランドマンションで、リノベーションにアフターサービスが付き、家族が永く、安心して暮らせる物件です。
パークサイドで緑を感じて暮らしたいご家族に。
もちろん川崎フロンターレファンのご家族にもオススメです。
ぜひ一度、ご見学ください!
| 住所 | 川崎市中原区上小田中6 |
|---|---|
| アクセス | 南武線「武蔵中原」駅徒歩7分 |
| 間取り | 2LDK |
| 広さ | 60.88㎡ |
| バルコニー | 12.11㎡ |
| 構造 | 鉄筋コンクリート造 |
| 階層 | 5階建3階部分 |
| 総戸数 | 26戸 |
| 築年月 | 1996年10月 |
| 改装年月 | 2026年3月 |
| 現況 | 空室 |
|---|---|
| 引渡し可能年月 | 相談 |
| 管理会社 | 株式会社モリモトクオリティ |
| 管理形態及び管理員の勤務形態 | 全部委託(通勤) |
| 土地権利 | 所有権 |
| ペット飼育 | 不可 |
| その他 | - |
| 取引態様 | 媒介 |
| 管理費 | 15,200円(月額) |
| 修繕積立金 | 18,810円(月額) |
スタイルが近い物件SIMILAR PROPERTY
-
中古マンション リノベ済
田園都市エリア(たまプラーザ駅)
【新価格】市場を味わい公園をくつろぐ、緑景の家
66.56㎡
4480万円
#with Kids #with Pets #アウトドアリビング #ガーデニング
2026.04.12
-
中古マンション リノベ済
田園都市エリア(たまプラーザ駅)
【新価格】フルオープンテラスと暮らす家
76.20㎡
4598万円
#with Kids #with Pets #アウトドアリビング #ガーデニング
2026.04.11
-
中古マンション リノベ済
田園都市エリア(たまプラーザ駅)
【新価格】眺望と陽だまりが気持ち良い、たまプラ高台の家
68.68㎡
5198万円
#with Kids #アウトドアリビング #ガーデニング
2026.04.07
-
中古マンション リノベ済
田園都市エリア(たまプラーザ駅)
三方の光と風を味わう、たまプラーザの家
72.00㎡
5780万円
#with Kids #アウトドアリビング #ガーデニング
2026.04.05
-
中古マンション リノベ済
田園都市エリア(宮崎台駅)
最上階の開放感と、美しいインテリアで暮らす家
75.30㎡
4299万円
#with Kids #with Pets #ガーデニング
2026.04.02
-
中古マンション リノベ済
田園都市エリア(鷺沼駅)
【新価格】4つの個室に陽だまりができる、鷺沼の家
82.33㎡
4690万円
#with Kids #with Pets #ガーデニング
2026.03.31
-
中古マンション リノベ済
田園都市エリア(市が尾駅)
最上階のルーバルからパノラマビューを望む家
71.35㎡
5498万円
#with Kids #with Pets #アウトドアリビング #ガーデニング
2026.03.27
無料相談を
おこなっております!
物件を買いたい、物件を売りたい、
不動産について相談をしたい方は、
まずは無料相談へお問い合わせください。
コンサルタントがあなたのお話をお伺いさせていただきます。
-
物件の購入を考えているお客様
-
物件の売却を考えているお客様













