中古マンション
リノベ済
2025/12/11 3654 Views
木のぬくもりと美デザインに癒されるメゾネット
田園都市エリア(宮前平駅)
93.42㎡
#with Kids #アウトドアリビング #ガーデニング
SOLD
物件のポイント
◎田園都市線「宮前平」駅徒歩4分の希少物件。スーパーやクリニックなど、日常に必要な施設のほか、フィットネスクラブや温泉施設も近隣に揃い、便利で、健康的な日常が過ごせる立地です。
◎93㎡超のゆとりあるメゾネット物件で、木のぬくもりあふれる、美しいインテリアは必見です。南向き約15㎡の専用庭は高台に立地し、“アウトドアリビング”や“ガーデニング”など、家族で“庭のある暮らし”を満喫することが可能です。
◎1983年建築の新耐震マンション。家族が永く、安心して暮らせる物件です。
物件概要
エリア田園都市エリア「宮前平」駅
金額 SOLD
住所川崎市宮前区宮前平1
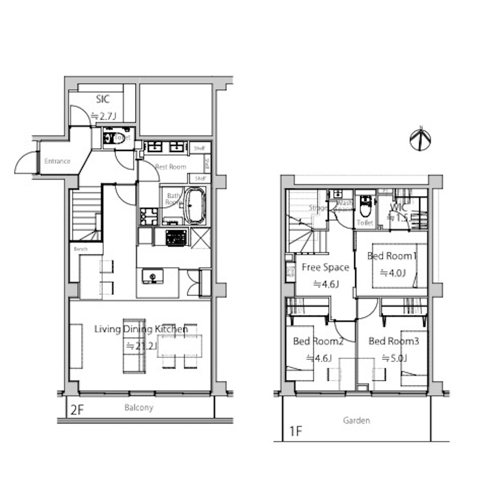
広さ93.42㎡+バルコニー4.86㎡+専用庭14.71㎡
アクセス田園都市線「宮前平」駅徒歩4分
スタイルアウトドアリビング/ガーデニング/with Kids
周辺
「宮前平」駅から徒歩4分の好立地。
日常の買い物に便利な施設が集まり、暮らしやすいエリアにあるのが今回ご紹介する物件です。
まずは、広場や遊具を備える「宮前平第2公園」が隣接します。
自宅の庭のような感覚で、子どもを思い切り遊ばせることができる距離。
高台から見渡す景色も開放感があり、リモートワーク後のリフレッシュにも嬉しい存在となりそうです。
100メートルほどの距離にフィットネスクラブが立地しているため、”健康的な暮らし”も実現できそうです。
週末はちょっと足を延ばして温泉施設に出かけ、家族で美味しい食事を楽しむのも良いですね。
田園都市エリア屈指の人気駅だけあり、緑豊かな美しい街並みには、多くの住宅と、評判の高い学校や学習塾、クリニックなどが集まり、安心して子育てできる環境が整っているように感じます。
(写真)遊具や広場が揃う「宮前平第2公園」

外観
約100戸がA〜Cの三棟に分かれて構成される、大規模レジデンス。
段々と積み重なるように建つ姿が、この街のランドマークのような存在感を放ちます。
南向きの高台に立地するため、日当たり、眺望ともに、良い条件が揃っているようです。

メインエントランス
ガラス張りのメインエントランスは、築年数を感じさせないモダンなデザイン。
レンガタイルに破損や汚れがほとんどなく、周囲の植栽も丁寧に手入れされており、良好な管理体制が伝わってきます。
オートロックこそ備わっていないものの、見通しの良いアプローチは管理室からの目が届きやすく、日々を安心して暮らすことができそうです。

玄関
玄関ドアを開けると、広いホールと階段があらわれ、メゾネットならではの、“家に帰ってきた”感覚が生まれます。
リビングへの壁をガラス貼りにすることで、フロア全体に開放感があふれる設計に。
床や建具に無垢材が採用された、上質で、快適そうなインテリアにもワクワクしてきます。

左手の扉を開くと、憧れのシューズクロゼットが。
大容量の収納は、これから靴の種類が増えていく子育て世帯に嬉しいスペースです。
これだけの大きさがあれば、おもちゃやスポーツ用品など、外用のアイテムをまとめて仕舞っておくこともできるでしょう。

ベンチスペース
リビングダイニングの手前にはベンチスペースを設計。
買い物帰りの荷物置き場や、家族のちょっとした団らんなど、90㎡超のゆとりがあるからこそ実現できる、フレキシブルな場所が用意されています。
美しい木の表情とアートのようなガラスパーテーションが、この部屋に“特別な雰囲気”を与えているようにも感じます。

リビングダイニング
リビングダイニングはキッチンを合わせて21畳!
広々とした空間で、たっぷりとした光と気持ちの良い風を感じながら、開放的な時間を過ごすことができそうです。

インテリアは”ジャパンディ”スタイルなどいかがでしょうか。
天然木の上質な空間には、「天童木工」や「飛騨産業」など、日本を代表するブランドが似合いそう。
ウォーターヒヤシンスやラタンの家具を選択して、アジアンリゾートの雰囲気を取り入れるのも素敵です。
やわらかく、あたたかみのある空間には、グリーンが美しく映えるでしょう。
大型プランターで我が家のシンボルツリーを設置して、美しい空間づくりに一役買ってもらいましょう。

窓から差し込むたっぷりとした日差しは、素材のもつ”やわらかさ”や”あたたかみ”も増幅してくれるようです。
居るだけで”癒やし”を感じるデザインこそ、この物件に住む最大のメリットになるのかもしれません。

バルコニー
バルコニーは約5㎡のコンパクトな空間です。
基本的には洗濯物を干すスペースとして考えるのが良いと思います。
せっかく南向きなので、バルコニーでも植物を育て、緑あふれるロケーションを演出したいですね。
手すりでハンギングのできるプランターを利用して、つる性草花で緑のカーテンを誘導してあげましょう。

キッチン
リビングダイニングをコントロールするように、空間の真ん中に設置されたアイランドキッチン。
ダイニングとの連携がスムーズで、調理中も家族や友人とコミュニケーションが取りやすいのが特長です。
パントリースペースも用意されているため、保存食や食器、キッチン用品などを収め、生活感を抑えた空間を維持できると思います。

サニタリー
サニタリーには、なんとダブルボウルの洗面台。
丸みを帯びたミラーや淡いカラーのタイルがどこかレトロな空気をまとい、ミニホテルのような小洒落た雰囲気を演出します。
大容量の可動棚が続き、タオルや日用品をすっきり収納できる実用性も魅力です。

白を基調とした、清潔感あるバスルーム。
お湯が冷めにくい浴槽や水量を削減できる節水シャワーなど、最新の機能が備わり、浴室乾燥機と合わせて、エコで快適な暮らしを実現することができるでしょう。

一階ホール
階段を下りると、4.6畳のホールがあらわれます。
窓のない場所ですが、上階の光がやわらかく届くため、閉塞感はありません。
造り付けのシェルフにお気に入りのマンガや雑誌を並べて、家族みんなで使える“リラックスコーナー”に。
デスクをセットして、ちょっとした作業スペースを設けるのも良さそうです。

南側個室
下のフロアには、庭に面した個室がふたつと、大きなウォークインクロゼット付きの個室がひとつ用意されています。
庭に面した南向きの個室は5畳と4.6畳。
壁や天井を白で統一しているため、外の緑が映える、気持ちの良い空間になっています。

専用庭
専用庭は約15㎡。
テーブル&チェアの”アウトドアリビング”や本格的な”ガーデニング”を楽しむのに十分な広さを確保しています。
せっかくの庭スペースです。
ハンモックやラウンジャーでゆっくりくつろげる、リゾート風の”アウトドアリビング”にしてみてはいかがでしょうか。
パラソルやオーニングを設置すれば、外からの視線をカットすることができるでしょう。
芝の手入れが面倒ならば、人工芝を貼ってしまっても美しく仕上がると思います。

北側個室
大きなウォークインクロゼット付きの北側個室は4畳。
南側の個室が子ども部屋になった場合は、夫婦の寝室になるのでしょう。
コンパクトですが、ふたつのベッドを設置できるスペースです。
(写真下)1.5畳のウォークインクロゼット


【リノベーション内容】
・給排水管新規交換
・クロス、フローリング貼替
・建具新規交換
・キッチン新規交換
・ユニットバス新規交換
・トイレ、洗面新規交換
・給湯器交換ほか
【スタッフのひとこと】
こちらの物件はいかがでしたか?
田園都市線「宮前平」駅徒歩4分の希少物件。スーパーやクリニックなど、日常に必要な施設のほか、フィットネスクラブや温泉施設も近隣に揃い、便利で、健康的な日常が過ごせる立地です。
93㎡超のゆとりあるメゾネット物件で、木のぬくもりあふれる、美しいインテリアは必見です。
南向き約15㎡の専用庭は、“アウトドアリビング”や“ガーデニング”など、家族で“庭のある暮らし”を満喫することが可能です。
1983年建築の新耐震マンション。家族が永く、安心して暮らせる物件です。
自然と街の両方を楽しみたいバランス派のご家族、“庭”でたくさんの思い出を作りたい愛情あふれるご家族にオススメです。
ぜひ一度、ご見学ください!
| 住所 | 川崎市宮前区宮前平1 |
|---|---|
| アクセス | 田園都市線「宮前平」駅徒歩4分 |
| 間取り | 3LDK |
| 広さ | 93.42㎡ |
| バルコニー | バルコニー4.86㎡、専用庭14.71㎡ |
| 構造 | 鉄筋コンクリート造 |
| 階層 | 10階建2階部分 |
| 総戸数 | 52戸 |
| 築年月 | 1983年12月 |
| 改装年月 | 2025年10月 |
| 現況 | 空室 |
|---|---|
| 引渡し可能年月 | 相談 |
| 管理会社 | 日本ハウズイング株式会社 |
| 管理形態及び管理員の勤務形態 | 全部委託(日勤) |
| 土地権利 | 所有権 |
| ペット飼育 | 不可 |
| その他 | - |
| 取引態様 | 媒介 |
| 管理費 | 14,710円(月額) |
| 修繕積立金 | 24,850円(月額) |
スタイルが近い物件SIMILAR PROPERTY
-
中古マンション リノベ済
田園都市エリア(宮崎台駅)
子育て条件の整った、大規模安心邸宅
80.93㎡
8180万円
#with Kids #with Pets #アウトドアリビング #ガーデニング
2026.01.21
-
中古マンション リノベ済
田園都市エリア(鷺沼駅)
【新価格】港北の緑と大きな陽だまりに包まれる家
70.34㎡
4290万円
#with Kids #with Pets #アウトドアリビング #ガーデニング
2026.01.20
-
中古マンション リノベ済
田園都市エリア(青葉台駅)
【新価格】大規模コミュニティで暮らす、上品グレージュの家
70.68㎡
6598万円
#with Kids #with Pets #アウトドアリビング #ガーデニング
2026.01.19
-
中古マンション リノベ済
田園都市エリア(市が尾駅)
大きなテラスがある、90平米超のゆとりある家
91.32㎡
4980万円
#with Kids #アウトドアリビング #ガーデニング
2026.01.17
-
中古マンション リノベ済
田園都市エリア(市が尾駅)
【新価格】光あふれる、88平米のゆとりある家
88.05㎡
4699万円
#with Kids #with Pets #アウトドアリビング #ガーデニング
2026.01.16
-
中古マンション リノベ済
田園都市エリア(たまプラーザ駅)
【新価格】たまプラ7分、駅近ライフ
66.11㎡
5180万円
#with Kids #ガーデニング
2026.01.15
-
中古マンション リノベ済
田園都市エリア(南町田グランベリーパーク駅)
南町田をゆったり暮らす、4LDKの南東角部屋
78.47㎡
4998万円
#with Kids #with Pets #アウトドアリビング #ガーデニング
2026.01.13
無料相談を
おこなっております!
物件を買いたい、物件を売りたい、
不動産について相談をしたい方は、
まずは無料相談へお問い合わせください。
コンサルタントがあなたのお話をお伺いさせていただきます。
-
物件の購入を考えているお客様
-
物件の売却を考えているお客様















