中古マンション
リノベ済
2025/11/09 555 Views
コンパクトコージーなノクチ7分の家
田園都市エリア(溝の口駅)
60.5㎡
#with Kids
SOLD
物件のポイント
◎3路線利用可能の人気駅「溝の口」から平坦で徒歩7分。人気の「OKスーパー」も近接し、利便性の大変高い立地です。
◎60.5㎡のコンパクトな3LDKに、シェルフや家具、エアコンがセットされたコージーな部屋。バルコニー前面の視界が大きく開けた、明るく、開放的な雰囲気もポイントです。
◎1995年建築の新耐震設計で、リノベーションにアフターサービス保証が付き、家族が永く、安心して暮らせる物件です。
物件概要
エリア田園都市エリア(溝の口駅)
金額 SOLD
住所川崎市高津区下作延4
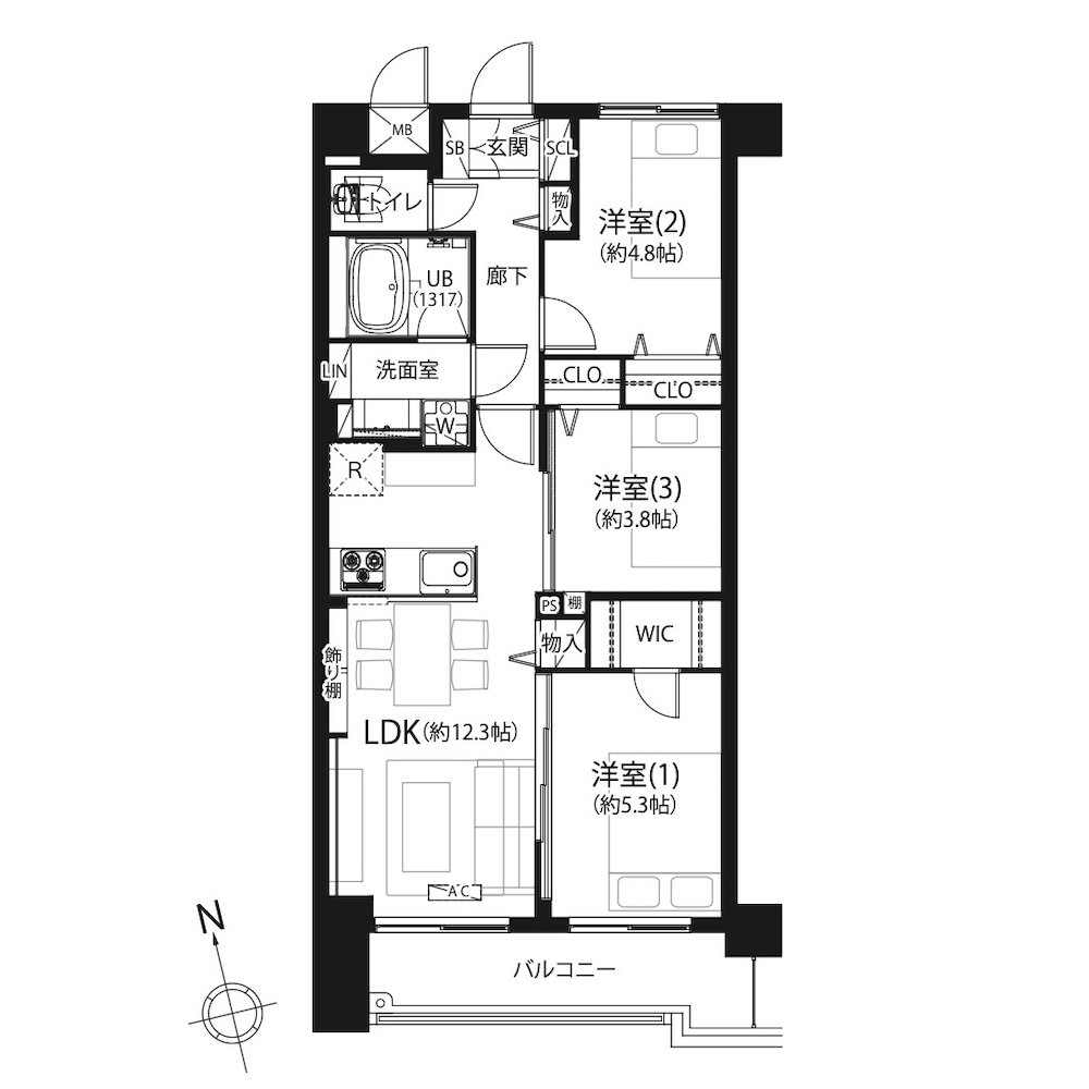
広さ60.5㎡+バルコニー6.44㎡
アクセス田園都市線「溝の口」駅徒歩7分
スタイルwith Kids
外観
ムラのあるブラウンタイルがどこか懐かしい、7階建て、71戸の中規模マンション。
「溝の口」駅からフラットに続く道沿いに、胸を張るように建つ、存在感のある建物です。
周囲に駐車場や植栽スペースが確保された、圧迫感のない、のびやかな佇まい。
ほどよく車の往来がありながらも、住まいとしての穏やかさを保つ、バランスの良い環境に感じます。

メインエントランス
山を形どったような、黒の庇が印象的。
タイル敷きのアプローチを緑豊かな植栽が覆い、通るたびに気持ちをリフレッシュすることができそうです。
段差のないフラットなアプローチは、キャリーケースやベビーカーの移動もスムーズです。

玄関
木目の優しい風合いに包まれた、ナチュラルテイストのインテリア。
約60㎡の面積ながら、両側のシューズクロゼットの続きに物入れまで備えた、収納力の高い設計です。
家族の靴はもちろん、掃除道具や外用グッズも収められるため、いつも清々しい印象を保てるでしょう。

リビングダイニング
リビングダイニングはキッチンを合わせて12.3畳。
南向きの窓から光がたっぷり入り、空の広がりが開放感をもたらします。
床と天井の木目が調和して、木のぬくもりに包まれた、心地よい空間に仕上がっています。

注目点は、壁に造り付けられた、間接照明付きのインテリアカウンター。
アートや家族の写真を飾るのも良いですし、ポイントにグリーンを置いて、緑あふれる空間を演出するのも良いでしょう。
壁掛けテレビの下処理が完了しているのもポイントです。

家具は、質感を活かしたナチュラルテイストをチョイス。
ファブリックソファやラグの柔らかな風合いが、空間にあたたかみとぬくもりを添えています。
ダクトレールに並ぶホワイトのスポットライトも印象的で、照明を変えることで、雰囲気のアレンジも楽しめそうです。
嬉しいのが、販売に家具やエアコンがセットされていること!
引越しのその日から、家族と一緒に素敵な時間を過ごせるでしょう。

バルコニー
バルコニーはコンパクトなスペースですが、南からしっかりと光が入ります。
壁際にシェルフを設置して、多肉やサボテンを眺めるミニガーデンを演出してみてはいかがでしょうか。
床にウッドパネルを敷いて、小さなチェアを用意すれば、可愛らしい緑のスペースが完成するはず。
家の中のアウトドア空間が、日常にちょっとしたうるおいを与えてくれるでしょう。

リビング脇個室
窓からたっぷりと日差しが入る、南向きのリビング脇個室。
夜だけ使用する寝室にはもったいないので、間仕切りを開放して、家族共有の場所にするのがオススメです。
リビングとの境にオープンシェルフを設置して、お気に入りの小物を飾れば、空間全体がセンス良くまとまると思います。

ウォークインクロゼットは、この部屋でもっとも大きな収納スペース。
家族共有の持ち物を含めて、しっかりと収納計画を立てましょう。

キッチン
キッチンはオープンタイプの対面式。
リビングダイニングのやわらかい光に包まれた、明るく、開放的な空間です。
引き出し式の収納は大容量で、家族分の食器や調理器具も収まります。
袖壁を少し高く設計して、シンクやワークトップが丸見えにならない配慮も嬉しいですね。

キッチン脇個室
キッチン脇には3.8畳の個室を配置。
間仕切りを開放して、ダイニング専用のスペースにしてしまうのも一案です。
ダイニングとリビングが斜めの関係になれば、空間がつながりながら、それぞれを独立した場所で使えます。
ダイニングテーブルで子どもが勉強する一方で、大人はリビングでのんびりしたり。
もちろんリビングスペースが広くなり、ゆったり快適に過ごせるのもポイントです。

サニタリー
明るい木目が清々しい雰囲気の洗面台。
大きな洗面ボウルや三面鏡など、使い勝手も良さそうです。
洗面台脇に可動式の収納棚が設置されているので、大きめのタオルから日用品まで、家族全員の物を整理して仕舞うことができるでしょう。

浴室は爽やかなベージュカラー。
翌朝には靴下で歩けるくらいに乾きやすい床は、掃除がしやすく、カビを心配しすぎることはありません。
追い焚き機能と浴室換気乾燥暖房機付きで、快適なバスタイムを過ごせると思います。

個室
みっつ目の個室は4.8畳。
廊下から直接出入りできるため、プライベート性が高く、夫婦の寝室に最適です。
タイルのような表情をもつ、美しいデザインクロスに合わせて、上質な家具で大人の空間を演出してみてください。

【リノベーション内容】
・フローリング張替え
・建具交換
・カーテンレール交換
・下足入れ交換
・トイレ設備交換
・キッチン交換
・洗面台交換
・ユニットバス交換
・給湯器交換
※家具、エアコン付き
※アフターサービス保証付き
【スタッフのひとこと】
こちらの物件はいかがでしたか?
3路線利用可能の人気駅「溝の口」から平坦で徒歩7分。人気の「OKスーパー」も近接し、利便性の大変高い立地です。
60.5㎡のコンパクトな3LDKに、シェルフや家具、エアコンがセットされたコージーな部屋。バルコニー前面の視界が大きく開けた、明るく、開放的な雰囲気もポイントです。
1995年建築の新耐震設計で、リノベーションにアフターサービス保証が付き、家族が永く、安心して暮らせる物件です。
居心地の良い家で、便利なノクチライフを満喫したいご家族に。
ぜひ一度、ご見学ください!
| 住所 | 川崎市高津区下作延4 |
|---|---|
| アクセス | 田園都市線「溝の口」駅徒歩7分 |
| 間取り | 3LDK |
| 広さ | 60.5㎡ |
| バルコニー | 6.44㎡ |
| 構造 | 鉄筋コンクリート造 |
| 階層 | 7階建5階部分 |
| 総戸数 | 71戸 |
| 築年月 | 1995年1月 |
| 改装年月 | 2025年10月 |
| 現況 | 空室 |
|---|---|
| 引渡し可能年月 | 相談 |
| 管理会社 | 株式会社モリモトクオリティ |
| 管理形態及び管理員の勤務形態 | 全部委託(日勤) |
| 土地権利 | 所有権 |
| ペット飼育 | 不可 |
| その他 | - |
| 取引態様 | 媒介 |
| 管理費 | 12,420円(月額) |
| 修繕積立金 | 13,610円(月額) |
スタイルが近い物件SIMILAR PROPERTY
-
中古マンション リノベ済
田園都市エリア(市が尾駅)
陽の光とモカブラウンの心地よい家
73.59㎡
5498万円
#with Kids #with Pets #アウトドアリビング #ガーデニング
2026.03.05
-
中古マンション リノベ済
田園都市エリア(宮崎台駅)
【新価格】学校隣にある、広い庭付きの家
66.91㎡
4799万円
#with Kids #アウトドアリビング #ガーデニング
2026.03.03
-
中古マンション リノベ済
田園都市エリア(江田駅)
【新価格】3方窓と3バルコニーの4LDK住宅
84.90㎡
6199万円
#with Kids #with Pets #アウトドアリビング #ガーデニング
2026.03.02
-
中古マンション リノベ済
田園都市エリア(宮崎台駅)
3人家族にジャストな宮崎台の家
57.75㎡
6180万円
#with Kids #with Pets #アウトドアリビング #ガーデニング
2026.02.28
-
中古マンション リノベ済
田園都市エリア(市が尾駅)
【新価格】光あふれる、88平米のゆとりある家
88.05㎡
4599万円
#with Kids #with Pets #アウトドアリビング #ガーデニング
2026.02.27
-
中古マンション リノベ済
田園都市エリア(宮前平駅)
パノラマ窓とルーバルの快適な家
70.67㎡
3999万円
#with Kids #with Pets #アウトドアリビング #ガーデニング
2026.02.25
-
中古マンション リノベ済
田園都市エリア(溝の口駅)
548世帯の最上階に君臨する家
76.34㎡
7880万円
#with Kids #with Pets #アウトドアリビング #ガーデニング
2026.02.19
最近見た物件RECENTLY PROPERTY
無料相談を
おこなっております!
物件を買いたい、物件を売りたい、
不動産について相談をしたい方は、
まずは無料相談へお問い合わせください。
コンサルタントがあなたのお話をお伺いさせていただきます。
-
物件の購入を考えているお客様
-
物件の売却を考えているお客様














