中古マンション
リノベ済
2026/02/19 75 Views
548世帯の最上階に君臨する家
田園都市エリア(溝の口駅)
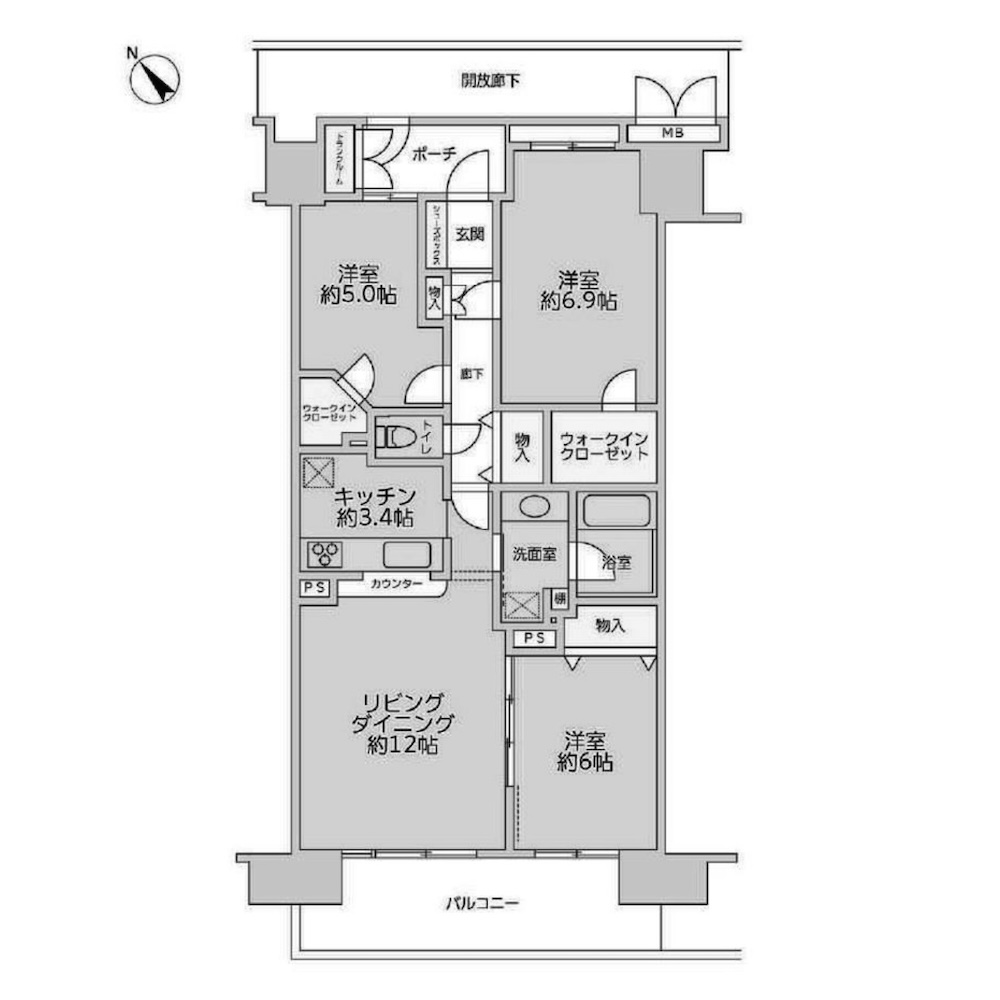
76.34㎡
#with Kids #with Pets #アウトドアリビング #ガーデニング
7880万円
物件のポイント
◎3路線利用可能で利便性の高い「溝の口」駅から徒歩14分。緑あふれる贅沢な共用部分が特徴の、総戸数548戸の巨大コミュニティーです。
◎全6棟548戸の最上階に君臨する部屋。南西向きのバルコニーは奥行きがあり、地上20階からの素晴らしい眺望とともに、家族だけの特別なアウトドア時間を過ごせます。
◎2000年建築の新耐震設計で、万全の管理体制のもと、家族が永く、安心して暮らせる物件です。
物件概要
エリア田園都市エリア(溝の口駅)
金額 7,880万円
住所川崎市高津区久本2
広さ76.34㎡+ワイドバルコニー12.35㎡
アクセス田園都市線「溝の口」駅徒歩14分
スタイルアウトドアリビング/ガーデニング/with Pets/with Kids
周辺
田園都市線、大井町線、南武線の3路線が利用でき、買い物施設や飲食店が立ち並ぶことで人気の「溝の口」駅。
駅北側の喧騒とは別に、物件が位置する駅南側は、「洗足学園音楽大学」を中心に音楽教室や楽器店が並ぶ、静かな街並みが広がっています。
駅から物件へと向かう道の途中には、レストランなどの店舗が集い、周囲を森のような緑に囲まれた「フィオーレの森」が。
近所で評判の店もあり、休日はランチを楽しむ人で賑わいます。
(写真)ヨーロッパ調の石畳が美しい「フィオーレの森」

共用部分
駅から平坦地を歩くこと約14分。
物件は25,580㎡の敷地に立地する、総戸数548戸の巨大コミュニティーです。
まず圧倒されるのが、敷地入り口に構える堂々としたエントランスゲート。
もはやひとつの街並みが形成されていて、万全な管理体制の下、安心して暮らせる環境が整っているようです。
花と緑に包まれたランドスケープも美しく、緑生い茂るさまざまな樹木の中に、季節の花が彩りを加えます。
敷地入り口には住人専用の併設公園も。
パーティールームや多目的スタジオ、集会室など、そのほか共用施設も充実し、特に子育て家族にとって、検討の大きなプラス材料になりそうです。
(写真)もはやひとつの街のような雄大なランドスケープ

外観&エントランス
全6棟の中で、もっとも高く、もっとも奥に配置されているのが今回の建物。
さながら天守閣のようなポジションで、最上階から敷地全体を見下ろす眺望は圧巻です。
外観は緑あふれる敷地に馴染む、ツートンのアースカラー。
敷地のあちこちにベンチが置かれていることから、住人同士のコミュニケーションが大切にされているのが分かります。


エントランスホール
全体を淡いベージュのトーンで統一した、柔らかく、清潔感のあるエントランスホール。
帰宅した家族をホッとする気持ちにさせてくれそうな、優しい雰囲気が漂います。
ひとつの乱れなく美しく整えられた空間から、しっかりとした管理体制が伺え、コンソールテーブルに生花が飾られるなど、大規模マンションならではのこまやかな配慮も感じます。

玄関
ブラウンのグラデーションで構成された玄関スペース。
床にも建具にも美しい木目があしらわれ、上質感あるインテリアが完成しています。
玄関収納は天井まで高さのある大容量サイズ。
その続きに浅型の収納スペース、さらにリビング扉手前に大型の収納スペースを備え、75㎡超のゆとりある面積を感じさせます。
コートなどの衣類からアウトドアグッズ、家族の書類や掃除道具など、用途によって場所を分けて使えると便利ですね。

リビングダイニング
リビングダイニングは長さと幅を確保した、ゆったりとしたスペース。
最上階のバルコニーから大きな空が広がり、部屋全体が気持ちの良い開放感に包まれています。

上質なフローリングと美しい色合いの壁面には、やはり北欧テイストが馴染みそう。
天然木のダイニングテーブルにファブリックのソファーを合わせ、やわらかく、清潔感のあるインテリアをつくりあげましょう。
イームズのチェアやポールセンのペンダントなど、ミッドセンチュリーのアイテムを加えることで、さらにセンスの良い空間に仕上がると思います。

ポイントに植物を置くことで、より美しく、快適な空間が実現します。
「パキラ」や「ウンベラータ」など、まずは手入れのしやすい植物から挑戦してみてはいかがでしょうか。
朝起きて、リビング扉を開ける瞬間が、一番幸せな時間に感じるのかもしれません。

バルコニー
奥行のある、ゆったりとしたバルコニー。
ウッドパネルや好みのタイルを敷いて、居心地の良い”アウトドアリビング”をつくることができるでしょう。
格子手すりから南向きの光がしっかりと入り込むため、各所にプランターを配置して、緑あふれる空間を演出するのがオススメです。
テーブルとチェアを置いてカフェスペースのような空間をイメージしたり、ハンモックを置いてのんびりと読書に耽ったり。
ペットも目を細めて、一緒に気持ちよく日向ぼっこしてくれそうです。

最大のみどころは最上階からの眺望です!
ほかでは味わうことのできないこの景色こそ、我が家を好きであり続ける、もっとも大きな要因になるのかもしれません。
広い空と太陽の光と、素晴らしい景色に包まれるこの場所で、家族だけの特別な時間を過ごすことができるでしょう!

リビング脇個室
リビング脇個室は6畳の大きさです。
リビングと3枚の引き戸で仕切られているため、個室としてリモートワークに対応しても、つなげて小さな子どものプレイルームとしても、どちらにも対応できる便利なマルチスペースとなりそうです。

キッチン
キッチンは対面式のオープンタイプ。
ダークブラウンとホワイトの組み合わせが美しく、上品で、高級感のある仕様です。
大容量のキャビネット収納と、背面のスペースを上手に利用することで、いつも美しい状態を維持することができるでしょう。
浄水器内蔵水栓や食洗機など、最新の機能が家事をしっかりサポートしてくれると思います。

サニタリー
ゆったりと幅の広い洗面台は、カウンター上部に継ぎ目がなく、汚れがたまりにくい最新の仕様です。
キャビネット収納以外に、背面に小物収納が用意され、さらに洗面台脇には天井まで高さのある大きなリネン庫が設置されています。

ブラウンの石調パネルがリッチな雰囲気のバスルーム。
1418サイズのゆったりとした空間の中で、大きな浴槽に身を委ね、快適なバスタイムを過ごすことができるでしょう。
もちろん浴室乾燥機や節水シャワーなど、最新の機能も搭載されています。

個室
廊下には6.9畳と5畳、ふたつの個室が設計されています。
7.4畳の個室に備わる収納は、棚とパイプがコの字を描く、大きなウォークインクロゼット。
衣類のほか、スーツケースやスポーツグッズなど、家族共用の荷物も仕舞っておくことができるでしょう。
ベッドを並べてもゆとりのスペースが残るため、窓際にデスクを置いて、ワークスペースに仕立てるのも良いですね。
(写真上)7.4畳の個室
(写真下)7.4畳個室のウォークインクロゼット


【リノベーション内容】
・ユニットバス交換
・トイレ交換
・クロス貼替
・フロアタイル上貼り
・全居室照明設置
・ハウスクリーニングほか
【スタッフのひとこと】
こちらの物件はいかがでしたか?
3路線利用可能で利便性の高い「溝の口」駅から徒歩13分。緑あふれる贅沢な共用部分が特徴の、総戸数548戸の巨大コミュニティーです。
全6棟548戸の最上階に君臨する部屋。南西向きのバルコニーは奥行きがあり、地上20階からの素晴らしい眺望とともに、家族のだけの特別なアウトドア時間を過ごせます。
2000年建築の新耐震設計で、万全の管理体制のもと、家族が永く、安心して暮らせる物件です。
最上階から見下ろす特別な景色を手に入れたいご家族、大規模物件で安心して子育てをしたいご家族にオススメです。
ぜひ一度、ご見学ください!
| 住所 | 川崎市高津区久本2 |
|---|---|
| アクセス | 田園都市線「溝の口」駅徒歩13分 |
| 間取り | 3LDK |
| 広さ | 76.34㎡ |
| バルコニー | 12.35㎡ |
| 構造 | 鉄筋コンクリート造 |
| 階層 | 20階建20階部分 |
| 総戸数 | 215戸 |
| 築年月 | 2000年6月 |
| 改装年月 | 2026年2月 |
| 現況 | 空室 |
|---|---|
| 引渡し可能年月 | 相談 |
| 管理会社 | 株式会社東急コミュニティー |
| 管理形態及び管理員の勤務形態 | 全部委託(日勤) |
| 土地権利 | 所有権 |
| ペット飼育 | 可 |
| その他 | コミュニティ会費:200円(月額) |
| 取引態様 | 媒介 |
| 管理費 | 11,300円(月額) |
| 修繕積立金 | 19,540円(月額) |
スタイルが近い物件SIMILAR PROPERTY
-
中古マンション リノベ済
田園都市エリア(宮前平駅)
【新価格】3人家族にジャストな宮前平の家
63.68㎡
6280万円
#with Kids #with Pets #アウトドアリビング #ガーデニング
2026.02.17
-
中古マンション リノベ済
田園都市エリア(梶が谷駅)
大きな陽だまりに癒される、梶が谷の家
78.41㎡
5299万円
#with Kids #with Pets #アウトドアリビング #ガーデニング
2026.02.15
-
中古マンション リノベ済
田園都市エリア(青葉台駅)
【新価格】大規模コミュニティで暮らす、上品グレージュの家
70.68㎡
6398万円
#with Kids #with Pets #アウトドアリビング #ガーデニング
2026.02.14
-
中古マンション リノベ済
田園都市エリア(宮前平駅)
【新価格】駅5分の地階にある、90平米超の秘密基地
94.77㎡
7380万円
#with Kids #with Pets #アウトドアリビング #ガーデニング
2026.02.13
-
中古マンション リノベ済
田園都市エリア(あざみ野駅)
AZAMINO GARDENSと暮らす、陽だまりの家
62.15㎡
4499万円
#with Kids #アウトドアリビング #ガーデニング
2026.02.12
-
中古マンション リノベ済
田園都市エリア(宮前平駅)
【新価格】小庭暮らしを楽しむ、駅6分の家
68.84㎡
5980万円
#with Kids #アウトドアリビング #ガーデニング
2026.02.10
-
中古マンション リノベ済
田園都市エリア(たまプラーザ駅)
たまプラ暮らしを満喫する、78平米のゆとりある家
78.00㎡
7980万円
#with Kids #with Pets #アウトドアリビング #ガーデニング
2026.02.08
無料相談を
おこなっております!
物件を買いたい、物件を売りたい、
不動産について相談をしたい方は、
まずは無料相談へお問い合わせください。
コンサルタントがあなたのお話をお伺いさせていただきます。
-
物件の購入を考えているお客様
-
物件の売却を考えているお客様














